无锡江阴市恒园彩纤有限公司 "7•17"较大闪爆事故调查报告


无锡市人民政府事故调查组

20256


目录


一、事故基本情况............................................................................2

(一)事故相关单位情况...........................................................2

(二)事故单位安全管理情况...................................................4

(三)事故建筑物相关情况.......................................................4

(四)生产工艺及技术改造情况...............................................7

(五)事故现场情况...................................................................8

(六)人员伤亡情况...................................................................9

二、事故发生经过及应急救援处置情况........................................9

(一)事故发生经过...................................................................9

(二)应急救援处置情况.........................................................10

三、事故直接原因..........................................................................11

四、有关单位和人员存在的主要问题..........................................11

(■)事故相关企业.................................................................11

(二)行业监管部门.................................................................12

(三)地方党委政府.................................................................13

五、对有关单位和责任人的处理建议..........................................13

(一)追究刑事责任的人员.....................................................13

(二)建议给予党纪政务处分的人员.....................................14


(三)行政处罚.........................................................................14

(四)其他处理建议.................................................................15

六、事故主要教训..........................................................................15

(一)生产工艺安全风险认识不足.........................................15

(二)企业安全管理流于形式.................................................16

(三)化纤行业监督管理不到位.............................................16

(四)“厂中厂"专项整治不彻底.............................................16

七、事故整改和防范措施..............................................................17

(一)深刻汲取事故教训,扎实开展警示教育....................17

二)推动设备更新改造,提升本质安全水平....................17

(三)深化“厂中厂"专项整治,全面管控安全风险.............18

(四)深入研判安全监管现状,切实提升监管质效............18


20247171256分许,位于江阴市徐霞客镇环镇 北路7号的江阴市恒园彩纤有限公司发生一起闪爆事故,造成5 人死亡,11人受伤,直接经济损失1528.3万元。

事故发生后,省政府主要领导作出批示,要求全力组织搜救 抢救受伤人员,尽快查明原因,落实企业主体责任,坚决防止类 似事故发生。无锡市委、市政府主要领导分别作出批示,要求调 集精干力量和设备全力处置救援,彻底查清事故原因,并深刻反 思。依据有关法律法规,718日,无锡市人民政府成立了由 市领导任组长,市公安局、市应急局、市总工会、市消防救援支 队和江阴市公安局、江阴市应急局、江阴市消防救援大队等单位 有关人员参加的事故调查组。事故调查组同步商请市纪委监委介 入调查,并聘请有关专家参与调查工作。省安委会对该起事故调 查处理实行挂牌督办。

事故调查组认真贯彻落实省、市领导批示要求,坚持科学严 谨、依法依规、实事求是、注重实效的原则,通过现场勘察、调 查取证、技术分析和模拟实验,查明了事故经过、发生原因、人 员伤亡和直接经济损失等情况,认定了事故性质和事故企业及相 关人员的责任,查清了有关地方政府和相关部门在监管方面存在 的问题,提出了对事故发生有关责任单位和责任人员的处理建 议,并针对事故发生原因及暴露出的问题,提出了事故整改和防 范措施建议。

调查认定,无锡江阴市恒园彩纤有限公司“7・17”较大闪爆


事故是一起因岗位员工盲目操作,生产单元安全设施缺失,现场 应急处置不当,地方党委、政府及其有关部门履职不到位而导致 的较大生产安全责任事故。

一、事故基本情况

(-)事故相关单位情况

L江阴市第一化纤有限公司(以下简称"第一化纤公司"), 事故厂房和纺丝生产线出租单位,成立于2000327日,住 所位于江阴市徐霞客镇马镇环镇北路7号,统一社会信用代码为 913202811422722121,法定代表人为余玉标。事故厂房和纺丝生 产线建设后,自用至2018年,之后不再从事纺丝生产活动,将 厂房和纺丝生产线分别出租给4家承租单位,均签订了租赁合同 和安全生产管理协议。

2.江阴市恒园彩纤有限公司(以下简称“恒园公司”),承 租事故厂房2号纺丝生产线,事故发生单位,成立于202312 18日,住所位于江阴市徐霞客镇马镇环镇北路7号,统一社 会信用代码为91320281MAD7PEGG49,法定代表人为曾荧晓, 日常生产经营由曾荧晓、张强(股东之一)负责。经营范围:合 成纤维的生产与销售。202431日,签订了租赁合同,合 同期限至20251231日,按照合同约定,负责纺丝生产线 的维护。

3.江苏永一环保化纤有限公司(以下简称"永一公司"),承 租事故厂房1号纺丝生产线,事故过火及人员受伤单位,成立于


2


2022916日,住所位于江阴市徐霞客镇马镇环镇北路7号, 统一社会信用代码为91320281MA27QCN08C,法定代表人为倪 国良。经营范围:合成纤维制造与销售。202311日,签 订了租赁合同,合同期限3年。

4.江阴市昊盛纤维有限公司(以下简称"昊盛公司"),原江 阴市宸豪纤维有限公司,承租事故厂房3号纺丝生产线,事故过 火及人员伤亡单位,成立于2021210日,住所位于江阴市 徐霞客镇马镇环镇北路7号,统一社会信用代码为 91320281MA257JUA8M,法定代表人为任花。经营范围:合成 纤维的制造与销售。2020220日,签订了租赁合同,合同 期限至20257月。

5.江阴市吴艺环保化纤有限公司(以下简称"吴艺公司”), 承租事故厂房4号纺丝生产线,事故过火及人员伤亡单位,成立 于2021512日,住所位于江阴市徐霞客镇马镇环镇北路7 号,统一社会信用代码为91320281MA2608F89N,法定代表人 为吴梅英。经营范围:合成纤维的制造与销售。202311 日,签订了租赁合同,合同期限3年。

6.江苏无染彩实业发展有限公司(以下简称"无染彩公司"), 第一化纤公司股权持有单位,成立于2014324日,住所位 于江阴市徐霞客镇徐霞客村冶坊桥65号,统一社会信用代码为 91320281093497107P,法定代表人为黄雅。经营范围:纺织品、 针织品、服装的制造与销售。20187月,组织开展2号纺丝


3


生产线技术改造,生产线增加了真空提纯系统。

7.扬州普立特科技发展有限公司以下简称"普立特公司"), 设计、制造和安装2号纺丝生产线真空提纯系统单位,成立于 200715日,住所位于扬州经济技术开发区扬子江中路186 号智谷大厦B222202室,统一社会信用代码为 91321091796525581M,法定代表人为王读彬。经营范围:技术 服务、技术开发、技术咨询、技术交流、技术转让、技术推广; 工程和技术研究和试验发展;新材料技术研发;生物化工产品技 术研发;机械设备研发等。

(二)事故单位安全管理情况

1.第一化纤公司。设置了安全生产管理机构,配备3名专职 安全员,主要履行对承租方的安全生产统一协调、管理职责,未 及时督促承租单位存在的多个隐患整改闭环,未督促4家承租单 位互相签订安全管理协议。

2.恒园公司。现有员工68名,设有1名兼职安全员,未辨 识纺丝生产线真空提纯系统安全风险,未制定真空提纯系统岗位 安全操作规程和现场处置方案。

(三)事故建筑物相关情况

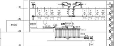
第一化纤公司厂区内有7栋建筑,包括6个生产车间,1栋 办公楼,厂区南侧设置有2处露天原料堆场。厂区平面简图及建 筑概况如图1所示。本起事故发生于2车间。



1第一化纤公司厂区平面简图及建筑情况

1.厂房建设手续情况。2车间自南往北依次为四层、二层和 单层结构,四层和二层为钢筋混凝土框架结构,单层为钢结构。 200782日取得"年产96000吨涤纶短纤维改建项目"投资 备案证,200783日取得建设工程规划许可证,200712 12日取得建设工程施工许可证,2008718日取得消防 验收合格意见,火灾危险性设计为丙类,2012613日取得 房屋产权证。

2.生产线布置情况。2车间内平行布置4条纺丝生产线,生 产线之间无物理分隔。厂房第四层堆放生产原料,设置投料口, 放置罗茨真空泵组;第三层放置转鼓干燥设备和冷凝器;第二层 放置有螺杆挤出机、导热油加热系统和混料提纯釜等设备。二层 和单层结构内布置有纺丝箱、打包机等设备。图2为单条纺丝生


产线设备布置示意图。



2单条纺丝生产线设备布置示意图

3.生产线出租情况。2号车间内4条纺丝生产线由西至东编 号为1号至4号,如图3所示。分别出租给永一公司、恒园公司、 昊盛公司和吴艺公司。4家单位承租后,未对生产线进行改造, 未互相签订安全生产管理协议,未明确各自的安全生产管理职责 和应当采取的安全措施。



3纺丝生产线布置情况


6


(四)生产工艺及技术改造情况

1.纺丝生产工艺。恒园公司主要使用原辅材料为再生聚酯 PET泡料、瓶片料等。原料经料仓进入转鼓烘干,后投至螺杆挤 出机加热熔化后挤出,通过真空提纯系统增粘后,由熔体输送泵 注入纺丝箱进行纺丝。

2.技术改造情况。20187月,无染彩公司与普立特公司签 订“日产60PET增粘工程"合同,组织事故厂房2号纺丝生产 线技术改造,生产线中增加真空提纯系统,20193月改造完 成并投入使用。20195月,无染彩公司将真空提纯系统产权 转移给第一化纤公司。20209月,技术改造项目通过竣工环 境保护验收。技术改造项目未开展建设项目安全设施“三同时"。

3•真空提纯工艺。真空提纯系统主要由真空泵组、冷凝器、 混料提纯釜、导热油加热及控制系统等组成,冷凝器与混料提纯 釜之间设有两个气相阀,如图4所示。混料提纯釜夹套内的高温 导热油将釜内PET原料加热至270-28(TC,在负压环境下,PET 原料熔体发生均化混合、去除低分子物质,产生的有机废气经冷 凝后排出,达到提纯增粘效果。



(五)事故现场情况

经调查询问、视频甄别分析及现场勘验,事故发生点位于2 号纺丝生产线混料提纯釜附近。2车间第四层无过火、烟熏痕迹, 第三层有轻微烟熏痕迹,第二层烟熏及过火痕迹严重,四周玻璃 炸裂破碎,1号和4号纺丝生产线完整,3号纺丝生产线部分设 备轻微变形,2号纺丝生产线受损痕迹最为严重,混料提纯釜整 体向南移位约1.17m,内部残留生产原料,固定混料提纯釜的钢 支架变形扭曲,北部处撕裂。混料提纯釜的北端孔盖向北飞出约 17.85m,釜内的盘片向北移出约13.25m。车间北部的控制室墙 面及内部的设备设施向北塌落的痕迹明显。车间南侧货梯铝合金 门板向电梯井内凹陷。图5为移位后的混料提纯釜。


8



5移位后的混料提纯釜


(六)人员伤亡情况

事故发生时,恒园公司现场有19名作业人员,事故造成2 人受伤;永一公司现场有23名作业人员,事故造成4人受伤; 昊盛公司现场有24名作业人员,事故造成4人死亡、2人受伤; 吴艺公司现场有24名作业人员,事故造成1人死亡、3人受伤。

二、事故发生经过及应急救援处置情况

(-)事故发生经过

20247162110分许,恒园公司纺丝生产线真空 泵电机故障停机,真空泵岗位员工董昌华排除故障后重新启动南 侧一组真空泵。因准备临时停产和检维修设备,厂长唐军随后又 关闭了真空泵,为便于排料,中控系统岗位人员根据唐军要求将 导热油温度设置为280C,冷凝系统设备正常开启,但夜间未组


9


织员工排料。

7178时许,唐军组织召开会议,安排真空泵组组长 张伟良对真空冷凝系统进行检修保养。9时许,恒园公司安排4 名员工进行排料,约排料12-16托盘,釜内剩余原料约1.8吨。 1150分,张伟良清理冷凝器,打开冷凝器人孔后,发现有白 色气体冒出,随即关闭连接冷凝器的2个气相阀。

12时许,多名员工向唐军反映冷凝器气相阀区域存在白色 气体泄漏,并伴有刺鼻气味。

1217分,唐军用打湿的石棉覆盖气相阀泄漏处。

125629秒,监控画面显示,2号生产线混料提纯釜附 近突然出现爆闪亮光并迅速增强,多处出现震动现象,燃烧波迅 速扩张,随后画面消失。

(二)应急救援处置情况

7171259分,无锡市消防救援支队江阴大队指挥 中心接到报警后,调派29辆消防车156名消防救援人员赶赴现 场处置。无锡市消防救援支队接报后,又调派15辆消防车、71 名消防救援人员前往增援。1311分,消防救援力量陆续到达 现场,发现事故建筑2层有大量浓烟外翻,火势处于猛烈燃烧阶 段,部分窗户破损,玻璃散落地面,建筑2层、3层及顶层均有 被困人员。1407分,二层、三层被困的9人被先后救出。14 10分,被困顶层的8人被全部救下。16时,现场明火基本被 扑灭。


10


接到事故报告后,省应急厅、无锡市委、市政府以及应急管 理、消防救援等有关部门和江阴市委、市政府相关领导立即赶赴 现场,组织消防救援、公安、卫健、应急等相关部门及属地乡镇 开展处置工作。整个现场救援处置措施得当,应急响应及时,组 织指挥有效,善后处理工作平稳有序。

三、事故直接原因

综合现场勘察、调查取证、技术分析和模拟实验,排除人为 放火、故意破坏和突发灾害等因素,认定事故直接原因:恒园公 司员工盲目关闭真空泵和气相阀,混料提纯釜内物料持续加热分 解产生有机废气,员工发现有机废气泄漏后现场未正确处置,釜 内气体积聚达到爆炸条件,遇点火能量发生闪爆,釜本体与端盖 分离移位,与釜体连接的导热油管线断裂,大量高温导热油喷溅 引发火灾,爆炸冲击波和燃烧波迅速扩张造成人员伤亡。

四、有关单位和人员存在的主要问题

(^^ )事故相关企业

1•恒园公司。安全生产主体责任不落实,未制定纺丝生产线 真空提纯系统岗位安全操作规程1;未对真空提纯系统进行安全 风险辨识2和制定管控措施3;未制定真空提纯系统现场处置方案4;

1《中华人民共和国安全生产法》第四条第一款:“生产经营单位必须遵守本法和其他有关安全生产的法律、法 规,加强安全生产管理,建立健全全员安全生产责任制和安全生产规章制度,加大对安全生产资金、物资、技术、 人员的投入保障力度,改善安全生产条件,加强安全生产标准化、信息化建设,构建安全风险分级管控和隐患排 查治理双重预防机制,健全风险防范化解机制,提高安全生产水平,确保安全生产"。

2《江苏省工业企业安全生产风险报告规定》(江苏省人民政府令140号)第八条第一款:“企业应当组织管理、 技术、岗位操作等相关人员,对生产工艺、设备设施、作业环境、人员行为和管理体系等方面存在的安全风险进 行全面、系统辨识”。

3《江苏省工业企业安全生产风险报告规定》(江苏省人民政府令140号)第十一条:"企业对辨识出的安全风 险,应当根据安全风险特点,从组织、技术、管理、应急等方面逐项制定管控措施,按照不同安全风险等级实施


11


对真空提纯系统岗位员工安全教育培训不到位5;真空提纯系统 真空度不足报警后未处置,未及时有效消除事故隐患6

2•第一化纤公司。真空提纯系统技术改造未开展安全设施 “三同时” 7,未及时发现并消除真空提纯系统安全设施缺失的 事故隐患8,将安全设施缺失的纺丝生产单元出租给恒园公司使 用9;安全生产统一、协调管理职责履行不到位,未向恒园公司 提供真空提纯系统工艺操作手册,未告知真空提纯系统的安全生 产要求10o

3.普立特公司。设计、制造和安装的真空提纯系统未设置紧 急泄压排放装置上不符合国家相关标准。

(二)行业监管部门


分级管控,将安全风险管控责任逐一落实到企业、车间、班组和岗位"。

4《生产安全事故应急预案管理办法》第十五条第一款:“对于危险性较大的场所、装置或设施,生产经营单位 应当编制现场处置方案"。

5《中华人民共和国安全生产法》第二十八条第一款:“生产经营单位应当对从业人员进行安全生产教育和培训, 保证从业人员具备必要的安全生产知识,熟悉有关的安全生产规章制度和安全操作规程,掌握本岗位的安全操作 技能,了解事故应急处理措施,知悉自身在安全生产方面的权利和义务。未经安全生产教育和培训合格的从业人 员,不得上岗作业"。

6《中华人民共和国安全生产法》第四十一条第二款:“生产经营单位应当建立健全并落实生产安全事故隐患排 查治理制度,采取技术、管理措施,及时发现并消除事故隐患。事故隐患排查治理情况应当如实记录,并通过职 工大会或者职工代表大会、信息公示栏等方式向从业人员通报。其中,重大事故隐患排查治理情况应当及时向负 有安全生产监督管理职责的部门和职工大会或者职工代表大会报告"。

7《中华人民共和国安全生产法》第三十一条:"生产经营单位新建、改建、扩建工程项目(以下统称建设项目) 的安全设施,必须与主体工程同时设计、同时施工、同时投入生产和使用。安全设施投资应当纳入建设项目概算。"。 8《中华人民共和国安全生产法》第四十一条第二款:“生产经营单位应当建立健全并落实生产安全事故隐患排 查治理制度,采取技术、管理措施,及时发现并消除事故隐患。事故隐患排查治理情况应当如实记录,并通过职 工大会或者职工代表大会、信息公示栏等方式向从业人员通报。其中,重大事故隐患排查治理情况应当及时向负 有安全生产监督管理职责的部门和职工大会或者职工代表大会报告"。

9《无锡市安全生产条例》第二十七条第二款:"生产经营单位不得出租有安全隐患的场所,或者将场所出租、 提供给不具备安全生产条件或者相应资质的单位或者个人从事生产经营活动"。

10《江苏省安全生产条例》第三十条第一款第二项:"生产经营单位将生产经营项目、场所、设备发包或者出租 的,应当履行下列安全生产职责:(二)向承包方、承租方书面告知发包项目、出租场所以及相关设备的基本情 况、安全生产要求"。

"《生产设备安全卫生设计总则》(GB5083-1999) 6.4.3: "因物料爆聚、分解反应造成超温、超压可能引起火灾、 爆炸危险的生产设备,应设置报警信号系统、自动和手动紧急泄压排放装置"。


12


L徐霞客镇综合执法局

对存在真空提纯工艺的再生化纤企业安全监管不到位,安全 生产监督检查不深入,对事故单位长期未辨识真空提纯系统安全 风险及操作规程缺失等问题不掌握。

2.江阴市应急管理局

对徐霞客镇综合执法局安全生产监督指导不到位,督促徐霞 客镇落实“厂中厂”专项整治措施不深入不彻底。

(三)地方党委政府

1•江阴市政府

江阴市政府未统筹好发展和安全,未压紧压实江阴市应急部 门、徐霞客镇开展化纤行业排查整治责任,部署推动“厂中厂" 等专项整治工作不全面、不彻底。

2.徐霞客镇

"厂中厂''专项整治工作开展不力,未按整治要求对事故单位 所在的“厂中厂”开展安全生产联合会诊,未督促事故相关单位 开展安全风险再辨识并开展检查;未发现并纠正第一化纤公司真 空提纯系统技改项目未按照规定开展安全设施"三同时”的问题。

五、对有关单位和责任人的处理建议

(一)追究刑事责任的人员

L唐军,恒园公司厂长。对事故发生负有直接责任,已被公 安机关立案侦查并采取强制措施。

2.张伟良,恒园公司真空泵组组长。对事故发生负有直接责


13


任,建议移送司法机关立案侦查,追究刑事责任ο

3.曾荧晓,恒园公司法定代表人,生产经营负责人。对事故 发生负有责任,已被公安机关立案侦查并采取强制措施。

4.张强,恒园公司生产经营负责人。对事故发生负有责任, 建议移送司法机关立案侦查,追究刑事责任。

5.李熊彪,2023年至20245月,担任第一化纤公司总经 理,20245月至事故发生时,担任第一化纤公司办公室主任, 具体负责安全生产管理工作。对事故发生负有责任,已被公安机 关立案侦查并采取强制措施。

6.徐华伟,20245月至事故发生时,担任第一化纤公司总 经理。对事故发生负有责任,建议移送司法机关立案侦查,追究 刑事责任。

(二)建议给予党纪政务处分的人员

对在事故调查中发现的地方党委、政府及有关部门的公职人 员履职方面存在的问题等线索及相关资料,已移交无锡市纪委监 委,对相关人员的党政纪处分由市纪委监委提出。

(三)行政处罚

1.恒园公司,对事故发生负有主要责任,建议由无锡市应急 管理局依据《中华人民共和国安全生产法》相关规定给予行政处 罚。

2.第一化纤公司,对事故发生负有主要责任,建议由无锡市 应急管理局依据《中华人民共和国安全生产法》相关规定给予行


14


政处罚。

(四)其他处理建议

1.普立特公司,为事故单位设计、制造和安装的真空提纯系 统不符合国家标准,建议移交扬州市市场监督管理局依法查处。

2.永一公司、昊盛公司、吴艺公司,在同一作业区域内进行 生产经营活动,可能危及对方生产安全,互相之间未签订安全生 产管理协议,明确各自的安全生产管理职责和应当采取的安全措 施,建议由江阴市应急管理局依法查处。

3.责成徐霞客镇向江阴市委、市政府作出深刻检查,责成江 阴市向无锡市委、市政府作出深刻检查。

六、事故主要教训

(-)生产工艺安全风险认识不足

事故单位使用的PET泡料为回收利用再生料,高温加热后 会产生多种成分有机气体。多年来,属地监管部门、使用单位对 该工艺存在燃爆风险认识不足,都未采取有效管控措施。真空提 纯系统技术改造时,设计单位也未考虑到该工艺存在的燃爆风 险,生产设备缺乏紧急泄压排放装置。在釜内余料未排尽并长时 间处于高温状态下,员工盲目关闭真空泵和气相阀,导致釜内气 体积聚泄漏。有机气体泄漏后,员工贸然用打湿后的石棉覆盖泄 漏处,没有采取有效措施,企业也未立即组织人员撤离,最终导 致事故发生。


15


(二)企业安全管理流于形式

恒园公司每月开展隐患排查流于形式,多年来未组织制定关 键岗位安全操作规程和现场处置方案,对员工教育培训不到位, 釜内有机废气不断积聚发生泄漏后,员工仍继续作业。第一化纤 公司作为事故厂房和设备出租方,未按要求告知承租方设备的安 全生产要求,虽定期对承租单位进行安全检查,但未及时督促承 租单位存在的多个隐患整改闭环;对承租单位统一协调管理不到 位,未督促事故厂房内4家承租单位互相签订安全管理协议,现 场也未采取可靠的安全措施。

(三)化纤行业监督管理不到位

江阴市化纤产业起步早,监管部门多年来未曾深入开展化纤 行业安全形势研判与风险分析,对真空提纯工艺存在燃爆风险不 掌握,部分再生化纤企业使用的真空提纯装置缺乏紧急泄压排放 装置,生产车间内的控制室设置不合理。属地监督检查人员对事 故相关单位检查不规范,发现隐患问题浮于表面,未有效督促企 业制定完善岗位安全操作规程和现场处置方案、压实出租方统一 协调管理职责。

(四)“厂中厂"专项整治不彻底

近年来,为规范"厂中厂''安全管理,全市部署开展了"厂中 厂,,安全生产专项整治行动,明确了针对性工作措施,但属地落 实不深入不彻底,隐患排查不深不细,存在以专职安全员巡查和 企业聘请的咨询服务机构定期检查代替专项排查的问题。事故发


16


生后,经现场勘察,事故车间及生产设备存在多项安全隐患。对 同一车间多条生产线分开出租混合作业新增安全风险认识不足, 未督促企业及时采取有效管控措施,导致一方发生事故,波及相 邻企业员工,扩大事故后果。

七、事故整改和防范措施

(一)深刻汲取事故教训,扎实开展警示教育

全市特别是江阴市要深刻汲取事故教训,狠抓安全生产责任 和措施落实,刚性压实党政领导、部门监管、属地管理、企业主 体和岗位行为责任,推动安全生产形势稳定向好。要组织化纤企 业扎实开展警示教育,督促企业重新辨识生产工艺、设备设施及 作业过程存在的安全风险,特别是真空提纯系统安全风险,制定 切实可行的风险管控措施和应急处置措施,完善并落实各项管理 制度和操作规程。要加强对纺丝生产从业人员的安全教育培训, 确保其熟练掌握工艺原理、危险因素、安全操作和应急处理技能。 要严格落实建设项目安全设施“三同时”,涉及生产工艺新建、 改建、扩建项目的安全设施,必须与主体工程同时设计、同时施 工、同时投入生产和使用。

(二)推动设备更新改造,提升本质安全水平

全市特别是江阴市要按照《无锡市化纤纺织企业安全生产全 链条整治行动实施方案》要求,聚焦源头管控、设备设施、现场 管理、应急处置、责任落实五个方面,有效开展化纤纺织企业安 全生产全链条整治,全力消除事故隐患。要推动纺丝生产线混料


17


提纯釜设置压力、温度等监测设施,并实现联锁停车功能。要推 动导热油炉设置在独立的防火分区,具备超温超压及泄漏自动报 警并联锁停车功能。要大力推进化纤纺织企业建设微型消防站, 切实提升火灾“灭早、灭小、灭初期”效能。江阴市要组织存在 合成纤维制造工艺的化纤企业,对生产厂房的爆炸危险区域划 分、同一时间作业人数限制和操作室、控制室合理设置开展专题 研究,并与“厂中厂”专项整治相衔接,有效管控化纤纺织产业 链安全风险,坚决防范遏制事故发生。

(三)深化“厂中厂"专项整治,全面管控安全风险

全市特别是江阴市要集中时间、集中力量,在前期“厂中厂" 专项整治基础上,有针对性地开展"厂中厂”化纤企业和化纤生产 线整治。要进一步摸清同一厂房内多条纺丝生产线出租、外包使 用现状,制定相关管理制度,明确出租、承包双方安全管理职责 和要求,加强混合作业安全风险的管控。要压实出租、承租双方 责任,按要求配备一键报警广播并实现区域联动,涉及可燃物料 的生产车间、仓库规范设置烟感报警装置,为员工配备“火灾逃 生四件套,,并组织开展使用培训。属地应急、消防部门要对化纤、 纺织企业开展一轮联合执法检查,加大对违法行为的惩戒和曝光 力度,强化企业安全意识和守法意识。

(四)深入研判安全监管现状,切实提升监管质效

全市要将化纤纺织行业安全监管作为“两张清单”体系建设 的重要内容,涉及提纯混料釜、导热油装置、合成纤维制造工艺


18


装置等高风险企业要纳入市(县)、区重点监管范围,对照职责 分工落实监管责任。全市特别是江阴市要加强镇(街道)安全生 产监督管理工作现状的调查评估,理顺县级市、区和镇(街道) 权责关系,加大对镇(街道)帮扶指导和监督力度,进一步规范 镇(街道)安全生产监督管理工作,切实提升监管质效,坚决守 牢安全底线。


19