浙江省消防技术规范难点问题操作技术指南
(2017年修订稿)
浙江省公安厅浙江省住房和城乡建设厅
关于印发浙江省消防技术规范难点问题操作技术指南的通知
各市公安局、建委(建设局、规划局、建管局)、有关单位:
为加快推进“最多跑一次”改革,全面实施施工图消防设计技术审查与行政审批相分离,解决各地在执行国家标准规范中遇到的疑难问题,统一全省消防设计、审查技术标准,省公安厅、省建设厅组织国家标准规范管理组和浙江省建设工程消防设计专家库的有关专家以及各市公安消防支队建审、验收业务骨干对2015年编制的《浙江省消防技术规范难点问题操作技术指南》(以下简称“《指南》”)进行了修订,并经专家评审同意,决定自2018年1月1日起实施,作为我省消防设计、施工、建设工程消防监督管理的依据。为确保《指南》内容得到有效贯彻执行,现将有关要求通知如下:
一、自本《指南》实施之日起,2015年省公安厅、省建设厅联合印发的《浙江省消防技术规范难点问题操作技术指南》(浙公通字[2015]54号)废止。
二、本《指南》实施之前下发的其他规范性文件与本《指南》有冲突时,应按本《指南》执行。
三、已经专家评审同意但未经消防设计审核的项目,当消防设计与本《指南》有冲突时,可按原专家评审纪要执行。已经施工图审查机构正式受理并网签的项目和消防部门(综合窗口)正式受理的项目,可按受理时适用的《指南》执行,鼓励采用本《指南》。
四、各市公安、建设部门要迅速将《指南》精神传达至辖区内设计单位和施工图审查机构,省公安厅和省建设厅将适时组织集中宣传贯彻。今后,本《指南》作为我省消防设计、施工、建设工程消防监督管理的依据,各地公安、建设部门以及设计、施工、监理、施工图审查机构等单位应严格执行。
五、本《指南》的具体解释工作由《指南》管理组负责。
浙江省公安厅
浙江省住房和城乡建设厅
2017年12月4日
前言
为加快推进“最多跑一次”改革,指导我省设计单位、施工图审查机构依法依规开展消防设计和审查工作,从源头上强化建设工程消防安全,浙江省公安厅会同浙江省住房和城乡建设厅组织浙江大学建筑设计研究院、浙江省建筑设计研究院、浙江省工业设计研究院等单位编制了本技术指南。主要内容包括:一、建筑分类和耐火等级;二、总平面布局;三、建筑构造和防火分区;四、安全疏散;五、消防给水;六、消防电气;七、防烟、排烟及供暖、通风和空气调节;八、动力专业;九、特殊场所。
本技术指南的具体解释工作由《浙江省消防技术规范难点问题操作技术指南》管理组负责,在执行过程中,请各单位结合工程实践,深入研究,不断总结经验,并将意见和建议寄交:浙江大学建筑设计研究院有限公司《浙江省消防技术规范难点问题操作技术指南》管理组(地址:杭州市天目山路148号东一楼;邮编:310028;E-mail:wangjn003@qq.com)
主编单位:浙江省公安消防总队
浙江大学建筑设计研究院有限公司
参编单位:(排名不分先后):
浙江省建筑设计研究院
浙江省工业设计研究院
中国联合工程公司
温州设计集团有限公司
杭州市建筑设计研究院有限公司
杭州市公安消防支队
宁波市公安消防支队
主要起草人:严晓龙 周志忠 伍卫军 黄亚东 方黎 吴高红 赵香囡 景政治 吕敬建 王健 项志峰 王靖华
何江 杨彤 刘莹 李平 赖庆林 林鑫 冯俊峰 袁斌 任君 王挺 胡赢耀 陈亮
主要审查人:王炯 黄德祥 王宗存 黄晓家
修订说明
《建筑设计防火规范》、《消防给水及消火栓系统技术规范》和《火灾自动报警系统设计规范》等多部国家标准已经相继修订、发布并执行了一段时间,2015年编制发布的《浙江省消防技术规范难点问题操作技术指南》中相应条款亟需调整。同时,我省正在开展的“最多跑一次”改革也对统一全省消防设计技术审查标准提出了要求。经与省建设厅协商同意,省公安消防总队于2017年5-8月期间多次组织召开了《技术指南》修订研讨会,形成征求意见稿,向各市建委(建设局)、消防、设计、施工图审查机构等单位征求了意见,并于2017年8月30-31日召开专家评审会,根据评审会意见修改后形成《技术指南(2017年修订稿)》,具体内容如下:
一、建筑分类和耐火等级
1.《建筑设计防火规范》GB 50016-2014(以下简称《建筑设计防火规范》)附录A中建筑高度和建筑层数的计算方法中,“室内高度”应按建筑层高计算;“室内顶板面高出室外设计地面的高度不大于1.5m的地下或半地下室”、“设置在建筑底部且室内高度不大于2.2m的自行车库、储藏室、敞开空间”可累计不计入层数,对于住宅建筑还可累计不计入建筑高度。
无楼梯到达且与其他建筑功能空间采取无洞口的墙体和楼板完全分隔的建筑屋顶的闷顶层(采用不燃性结构)可不计入高度和层数。

附图1.1 坡屋顶建筑高度计算
建筑屋面为坡屋面时,建筑高度应按建筑室外设计地面至檐口(按照建筑外墙面起坡处起算)与屋脊的平均高度或建筑室外设计地面至屋顶最高使用夹层的楼面的高度取较大值。(附图1.1)
住宅建筑单元平-坡结合的屋面,应按照最高屋面计算建筑高度,当平屋顶部分占屋面面积(按照建筑外墙面起坡处投影线起算围合面积)不大于1/4的,可按上述规定计算建筑高度。(附图1.2)

附图1.2 平-坡结合屋顶建筑高度计算:b≤1/4a
建筑屋面坡度不大于3%时,建筑高度计算时,屋面面层算至靠外墙处的屋面最低点。工业建筑和公共建筑(含商业住宅组合楼)屋面面层算至屋面的建筑完成面(包含绿化层、保温层等屋面构造厚度);住宅(含底层设置商业服务网点的住宅)屋面面层可算至屋面结构板面。(附图1.3)

附图1.3 屋面面层计算
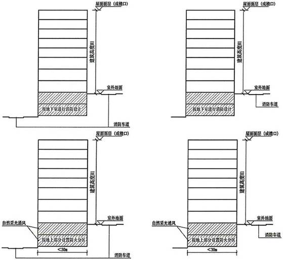
2.对于台阶式地坪,当位于不同高程地坪上的同一建筑无法满足分别计算各自建筑高度的条件时,应按下列原则计算建筑高度:
按规范需要设置环形消防车道的建筑,当其较低室外地坪和较高地坪形成环形消防车道或沿建筑的两个长边设置贯通式或尽头式消防车道时,可按较高或较低室外地坪(与应设置的消防登高操作场地的标高应一致)起算建筑高度;按规范可沿建筑的一个长边设置消防车道的高层建筑,其最大进深不宜大于50m,可按消防车道的相应室外地坪(与应设置的消防登高操作场地的标高应一致)起算建筑高度;其余建筑,可按照实际室外地坪情况确定起算建筑高度。
低于较高地坪的房间应根据实际情况确定消防设计:
(1)当按较高的室外地坪起算建筑高度时,低于较高地坪的房间应按地下室进行消防设计,当建筑内部距外墙临空处进深小于30m时且具备自然采光通风条件时,可按地上部分设置防火分区;(附图2.1)当建筑内部距外墙临空处进深大于30m时,则整层平面均按地下室进行消防设计。

附图2.1 按较高的室外地坪起算建筑高度
(2)当按较高的室外地坪起算建筑高度时,低于较高地坪的房间地面与较高地坪的高差小于其层高的1/3时(从较高地坪起算为地上房间),可按地上部分进行消防设计;(附图2.2)

附图2.2 低于较高地坪的房间地面与较高地坪的高差较小
(3)当按较低的室外地坪起算建筑高度时,低于较高地坪的房间,可按地上部分进行消防设计。当建筑内部距外墙临空处进深大于30m或不具备自然采光通风条件时,应按照地下室进行消防设计。(附图2.3)

附图2.3 按较低的室外地坪起算建筑高度
3.建筑高度超过24m的单层厂房可按单层厂房设计。
4.电子厂房是指生产、加工电子元器件的工业建筑。
5.木器厂房是指以木材为原料,进行生产、加工各类木质板材、家具、构配件、工艺品、模具等成品、半成品的工业建筑。
6.《建筑设计防火规范》第8.3.1条第2款规定的类似生产厂房、第8.4.1条第1项规定的类似用途的厂房和第10.3.1条第5款规定的人员密集的厂房是指“单体建筑任一生产加工车间或防火分区,同一时间的生产人数超过200人(或者同一时间的生产人数超过30人且人均建筑面积小于20平方米)的制笔、制伞、打火机、眼镜、印刷等丙类厂房、肉食蔬菜水果等食品加工,或生产性质及火灾危险性与之相类似的厂房”。
7.《建筑设计防火规范》第8.5.2条第2款规定的丁类生产车间是指“生产厂房内任一空间(房间)的建筑面积大于5000m2的丁类生产车间”。
8.对民用爆破器材工程和烟花爆竹工程的建筑内部工艺与布置、危险品储存与运输等设计内容可不予审核,且应当执行现行国家标准《民用爆破器材工程设计安全规范》GB 50089和《烟花爆竹工程设计安全规范》GB 50161。上述标准中关于建筑之间的防火间距、消防车道等建筑外部的消防设计要求低于《建筑设计防火规范》的规定时,应按照《建筑设计防火规范》的规定执行。
9.宿舍楼的消防设计应符合规范有关公共建筑的规定(规划部门认可按照成套住宅功能设置的除外),宿舍用房不得与其他建筑(配套用房除外)共用疏散楼梯。高层宿舍楼走道和房间均应设置自动喷水灭火系统和火灾自动报警系统。
公寓式办公楼的应按办公楼的要求进行消防设计,公寓式酒店、酒店式公寓应按旅馆的要求进行消防设计。但上述用房与商场、营业厅不应共用疏散楼梯。
10.无治疗功能的休养性质的月子护理中心,应按照旅馆建筑的要求进行消防设计,但疏散距离应按医疗建筑的病房部分要求执行。
用于教学的实训楼,如技工学校中的汽车检修教室、卫生职业技术学院中的老年人护理、医学院中的模拟病房、商贸学院中的模拟酒店客房等用房,可按照教学实验建筑的要求进行消防设计。
保龄球、台球、棒球、飞镖、真人CS、密室逃生、室内电动卡丁车场等场所属于公共娱乐场所,与其它功能用房之间应采取防火分隔措施,可不按歌舞娱乐放映游艺场所设计。
11.当裙房与主体之间在高层建筑主体投影范围外(含投影线)采取防火墙和甲级防火门分隔后(不得采用防火卷帘替代),该裙房的楼梯间形式和防火分区可按单、多层建筑的要求确定,可不设置消防电梯。(附图11)

附图11
12.多种功能组合的公共建筑下部的附属建筑,当同时符合下列条件时,主体建筑与附属建筑的安全疏散、防火分区和消防电梯设置可根据各自的高度分别按规范执行:(附图12)
(1)附属建筑与主体建筑相连且建筑高度不大于24m。
(2)附属建筑与主体建筑之间采用不开设门窗洞口及穿越通风管道的防火墙和不开设洞口(消防电梯井、上下管道井(其中通风井道井壁不得开口,强、弱电、给排水管井井壁检修门采用乙级防火门)除外)且耐火极限不低于2.50h的楼板分隔。

附图12
(3)附属建筑与主体建筑的疏散完全独立。
(4)附属建筑外墙与主体建筑外墙相接处设置高度(宽度)不小于4m的窗槛墙(窗间墙)。
13.歌舞娱乐放映游艺场所内设置配套营业用房(办公、卫生间、仓储和建筑面积不超过100m2的小卖部等除外)应按歌舞娱乐放映游艺场所的要求进行消防设计。该配套用房与歌舞娱乐放映游艺场所处于处于同楼层不同防火分区且疏散完全独立或者处于不同楼层不同防火分区时,可按其实际功能进行消防设计。
14.《建筑设计防火规范》第5.4.4条中出现的“儿童活动场所”是指托儿所、幼儿园、儿童福利院、孤儿院的儿童用房以及儿童游乐厅、亲子儿童乐园、儿童特长培训班、早教中心等14周岁及以前的儿童(以游乐产品的使用说明书明确的适用对象或以申报、设计单位出具的图纸、说明为准)的活动场所。
15.鉴于监狱建筑的特殊性,如《建筑设计防火规范》与《监狱建设标准》(建标139-2010)在相关规定中出现不一致情况的,可按《监狱建设标准》(建标139-2010)执行。
16.《建筑设计防火规范》条款中出现的“重要公共建筑”可参照《汽车加油加气站设计与施工规范》GB 50156-2012(2014年版)附录B关于重要公共建筑物认定的标准来界定。
17.《汽车库、修车库、停车场设计防火规范》GB
50067-2014第2.0.5条规定的净高为从汽车库地面计算至上部板底的高度。半地下汽车库的消防设计应按地下汽车库的要求执行。
18.摩托车库、电动汽车库应按内燃机驱动的汽车库的消防设计要求执行。摩托车库应按照每40m2折算成1个汽车车位确定其防火分类,折算时余数不足40m2的按1个汽车车位考虑。
二、总平面布局
(一)消防车道与消防车登高操作场地
19.按《建筑设计防火规范》第7.1.2条及第7.1.3条规定要求设置消防车道的建筑,其消防车道距离建筑外墙不宜小于5m、不应大于30m,距离最不利防火分区的主要出入口不应大于60m;对于其余建筑,其消防车道距离最不利防火分区(住宅的最不利单元)的主要出入口不应大于80m。
20.高层、多层建筑的消防车道转弯半径应分别不小于12m、9m,可采用作图法画出一条满足转弯半径的4m宽消防车道进行校核。(附图20)

附图20 消防车道转弯半径
21.消防车能够利用的不规则的场地(可为丁字形,Y字型等满足消防车回车要求的场地(从交叉点起算车道长度不应小于12m,附图21)可以作为消防回车场地。

附图21 不规则的消防回车场地
22.消防车道、消防车登高操作场地应采用硬质铺装面层,消防车登高操作场地应采用明显标识。
23.与消防车登高操作面对应,应当设置消防车登高操作场地和连接登高操作场地的消防车道,其长度不应少于建筑一个长边或周长的1/4且不小于一个长边长度。
建筑高度大于50m的公共建筑,消防车登高操作场地应连续布置。

附图23.1
高层住宅建筑和建筑高度不大于50m的公共建筑,连续布置消防车登高操作面确有困难时,可不连续布置,消防车登高操作面的间隔不应大于30m。(附图23.2)高层住宅建筑的消防车登高操作场地可按照住宅各个单元连续布置。

附图23.2
注:1.A+B+C≥1/4周长且不小于一个长边长度。
2.高层住宅高度>50m时,登高操作场地长度按括号内数字。
住宅建筑端头底部设置商业服务网点、总高度(建筑层高之和)不超过7.8m的变配电房等时,当其与住宅的交接部位长度不大于10m且消防车登高可到达至该单元的楼梯间或每户时,该住宅可视作满足消防车登高操作场地要求。(附图23.3)消防车登高操作场地满足回车场要求时,可不设置穿过建筑物的消防车道。

附图23.3 该部位的住宅可视作满足消防车等高操作面要求
24.建筑物与消防车登高操作场地相对应的范围内,应设置直通室外的楼梯或直通楼梯间的入口,入口可为通往楼梯间的门厅、走道。
25.消防车登高操作场地的设置应能满足消防登高车可以保护到居住建筑的每个单元和工业建筑、公共建筑需设置消防车登高操作场地一侧的每个消防救援口。
26.《建筑设计防火规范》第7.2.2条第1款规定的“车库出入口”不包括非机动车出入口。消防车登高操作场地与登高操作面的建筑外墙之间不应设置汽车库(坡道)出入口。当设有在建筑投影范围内的汽车库(坡道)出入口时,建筑外墙与消防车登高操作场地的距离不应小于6m,汽车疏散不应影响消防车的通行;汽车库(坡道)出入口两侧应设置长度不小于6m的不开设门窗洞口的防火墙,汽车库坡道应设置自动喷水灭火系统,汽车库坡道出入口应设置高度不小于1.0m的挡烟垂壁。(附图26)
附图26 建筑投影范围内的汽车库(坡道)出入口
27.消防车登高操作场地原则上应设置在用地红线内,如设置在红线外时,应征得主管部门的书面认可(可为规划、建设、城管、交通、绿化等部门),还应确保登高场地范围无高大乔木行道树及架空线路等影响登高操作的障碍物。
(二)灭火救援
28.厂房、仓库和商店建筑的每个防火分区至少应设置两个直通走道、公共区域(可利用公共卫生间、楼梯间及前室的开口)或大空间区域的消防救援口。(附图28.1)

附图28.1

附图28.2
确有困难时,不靠外墙的防火分区,至少应设置两个通向相邻设有消防救援口防火分区的走道、公共区域或大空间区域的连通口(此连通口不得采用防火卷帘)。(附图28.2)
设置玻璃幕墙的住宅建筑的外墙应在每户的适当位置设置可供消防救援人员进入的窗口,设置位置应与消防车登高操作场地相对应。
建筑物各层直通室外或敞开外廊、阳台的门、窗可以作为消防救援口。每个商业服务网点、各层均应设消防救援口。
(三)防火间距
29.相邻两座建筑之间通过设置防火墙以满足防火间距不限的条件时,当两座相邻建筑形成夹角小于180度时,最近的门窗洞口间距不应小于相应的防火间距要求:当两座相邻建筑形成夹角不小于180度时,紧靠防火墙两侧的门、窗、洞口之间最近边缘的水平距离应不小于2m。(附图29)

附图29
30.汽车库与托儿所、幼儿园、中小学校的教学楼、老年人建筑、病房楼等组合建造时,应符合下列要求:
(1)疏散楼梯应分别独立设置,可按照附图30执行;

附图30
(2)汽车库的开口部位(楼梯间开口除外)与组合建造的上部建筑的外墙开口之间的直线距离不应小于6m(且水平距离不应小于4m)。
31.建筑屋顶和地下室顶板上开设消防排烟口、采光、通风等开口时,该开口与上部建筑开口之间的直线距离不应小于6m(且水平距离不应小于4m,附图31.1)。

附图31.1 建筑屋顶和地下室顶板开口设置
当上述开口采取防火分隔措施时或开口背向建筑物时,开口与上部建筑的距离可不限。(附图31.2)

附图31.2 开口背向建筑物
当地下汽车库、非机动车库的坡道出入口不作为排烟口用时,坡道出入口与上部建筑物的距离可不限。
下沉广场、庭院等开口部位当下方仅作为景观、绿化、人员通行使用时,与上部建筑物的距离可不限。
32.屋顶停车场的汽车坡道按地上汽车库要求设置。住宅小区地面配套设置的沿小区道路的单排的停车位,可不按地面停车场认定。(附图32)

附图32
有围护结构的地面机械车库应按汽车库控制防火间距。
33.供教学、科研的高层建筑中的实验室日常使用的少量甲、乙类气体的储藏间,可贴邻建筑设置,但应满足以下要求:
(1)甲、乙类气体的总储存量不应大于0.5m3;
(2)存放可燃气体储罐的储藏间,应设置在建筑的首层靠外墙部位且应采用耐火极限不低于3.00h的不开设门窗洞口的防火隔墙、耐火极限不低于2.50h的楼板与建筑的其他部分分隔;开门应直通室外。
34.建筑、构筑物和设备设施与明火散发地点的防火间距应按产生明火的固定点进行控制。
35.当相邻建筑通过连廊、天桥或底部的建筑物等连接时,其间距不应小于两个建筑防火间距的要求,连廊、天桥宽度不宜大于6m;当其连接物为封闭时,应设置防止火灾蔓延的措施。连廊、天桥之间的距离不应小于6m。
符合《建筑设计防火规范》第6.6.4条规定符合安全出口条件的天桥、连廊,通过该连廊、天桥向相邻建筑的疏散宽度不应大于的天桥、连廊,通过该连廊、天桥向相邻建筑的疏散宽度不应大于本建筑楼层疏散总宽度的30%。
36.同一座回字形、U型、L型公共建筑两翼属于不同防火分区时,其内转角两侧墙上的门、窗、洞口之间最近边缘的水平距离不应小于4m,回字形公共建筑相对的两翼距离应符合防火间距要求,U型公共建筑相对的两翼的防火间距不应小于6m,确有困难,可在两窗之间“U”形底边处挑出一片垂直防火隔墙,该隔墙的外端应与相对的两个窗的最外边平齐(附图36.1)。

附图36.1 不同防火分区U型、L型公共建筑防火间距
当建筑高度大于24m时,回字形公共建筑相对的两翼属于同一防火分区时,相对的两翼最近的门窗洞口间距应不小于按照内天井的空间高度确定的防火间距要求。(附图36.2)

附图36.2 同一防火分区回字形公共建筑防火间距
37.住宅建筑的天井应设置成U型,应按图例设置,图例中的A和B宜对应设置,当B>6m时B可取6m;如需设置连廊时应为敞开连廊,该敞开连廊兼作前室或者合用前室时,与疏散无关的门、窗不得直接开向敞廊,开向天井的门窗洞口距离敞廊不得小于1.0m。开向敞廊的户门数量可超过3樘。(附图37)

附图37 住宅建筑U型天井
三、建筑构造和防火分区
(一)建筑构造
38.除《建筑设计防火规范》、本《技术指南》中明确为“不开设门窗洞口的防火墙”、“防火墙不能用防火卷帘、防火分隔水幕等措施替代”以及设于防火间距不限处的防火墙外,其余关于防火墙的描述,均可按规范要求开设防火门(窗)、防火卷帘等防火分隔措施。
39.工业建筑中,当采用钢框架、钢梁支撑(承)防火墙时,钢框架、钢梁应采用不燃烧体包覆,其耐火极限应满足防火墙耐火极限要求。
40.《建筑设计防火规范》第6.5.3条中防火分隔部位是指相邻两个防火分区相接的部位。当汽车库防火分隔部位的宽度大于30m时,防火卷帘的宽度不应大于该部位宽度的1/3。
中庭四周作为上下层防火分区划分使用的防火卷帘,应结合建筑结构靠近中庭开口设置,可按《建筑设计防火规范》第6.5.3条中关于中庭的要求设计防火卷帘的长度;(附图40.1)

附图40.1 中庭卷帘设置
中庭的防火卷帘设在同层防火分区间的隔墙上时,其长度不计入防火分区间隔墙的总长度和隔墙上防火卷帘的长度。(附图40.2)

附图40.2 不计入中庭卷帘长度(应满足a+b≤1/3(A+B))
中庭的上部各层回廊与中庭间的防火卷帘可采用耐火极限不低于3h的防火卷帘(可不考虑耐火隔热性)。
自动扶梯、敞开楼梯、大堂、门厅等上、下层相连通的开口,可参照中庭要求设计防火卷帘。
41.不应使用不符合消防产品市场准入要求的水平、侧向等开启方式的防火卷帘和弧形、L型等不规则型的防火卷帘。
42.根据《建筑设计防火规范》第5.4.7条第1款规定,剧场、电影院、礼堂确需设置在其他民用建筑内时,应采用耐火极限不低于2.00h的防火隔墙和甲级防火门与其他区域分隔,当该部位为防火分区的界限时,应采用防火墙和甲级防火门;该分隔部位不得用防火卷帘替代。采用中庭与其他区域分隔时,允许在中庭周围设置防火卷帘。
43.《饮食建筑设计规范》JGJ 64-89第3.3.11条规定的“热加工间的上层有餐厅或其他用房时,其外墙开口上方应设宽度不小于1.0m的防火挑檐”,也可在建筑外墙上、下层开口之间应设置高度不小于1.2m的实体墙(设置自动灭火系统时也不能减小)。
44.《建筑设计防火规范》第6.2.5规定的“住宅建筑外墙上相邻户开口之间墙体宽度不应小于1.0米。”当开口部位采用乙级及以上的防火门窗时,间距可不限。
住宅建筑同一户内的外墙上、下层开口之间的实体墙高度可不作要求。住宅套内自用的电梯与疏散楼梯相邻布置时,可不设封闭楼梯间。住宅建筑开向楼梯间、前室或合用前室的户门,开启方向可不限。
45.自然排烟窗应设置在顶棚上或外墙上方,当设置在外墙上时,自然排烟窗下沿(有效自然开窗面积计算起算点)距室内地面的高度不应低于储烟仓(或挡烟垂壁)下沿高度H(H=1.6m+0.1*净空高度);对于走道或室内净高不大于3m的区域,其自然排烟窗下沿距室内地面的高度不应低于其净高的1/2;自然排烟窗宜沿火灾烟气的气流方向开启,且有方便开启的装置。不符合前述要求的开窗面积不应计入有效自然开窗面积。
楼梯间(含前室、合用前室)的自然通风窗的设置高度及开启方向可不受此限;当房间建筑面积不大于200m2时,其自然排烟窗的设置高度及开启方向也可不限。
46.《建筑设计防火规范》第6.7.2条第1款规定的场所不包括住宅建筑中的厨房。
47.《建筑设计防火规范》第5.5.32条第1款规定的可开启外窗的有效开启面积不应小于1m2。
48.住宅建筑的建筑外墙外保温系统,其保温材料应符合下列规定:建筑高度大于27m,但不大于54m时,保温材料的燃烧性能宜为A级;建筑高度大于54m时,保温材料的燃烧性能应为A级。
(二)防火分区
49.地下商业与汽车库之间应采用不开设门窗洞口的防火墙分隔,若有连通口时,应采用下沉式广场等开敞区域、避难走道、防火隔间或防烟前室连接。
50.地下汽车库同一层停车区域建筑面积大于50000m2时,应分隔成若干个停车区,停车区之间(主车道处除外)应采用不开设门窗洞口的防火墙分隔,在主车道处可利用防火隔间相连,防火隔间两侧应为不开设门窗洞口的防火墙,两端可为特级防火卷帘。防火隔间可不设置防排烟设施。
51.下列场所可不计入防火分区面积:防火分区内设有甲级防火门的水泵房、消防风机房以及桑拿浴室的洗浴部分、厕所、盥洗间、室内游泳池、真冰溜冰场的冰面面积、消防水池;防烟楼梯间及其前室、消防电梯前室及其合用前室、设置有防火门的封闭楼梯间;敞开连廊、阳台。
52.金融机构内部使用的金库防火分区面积最大允许建筑面积为1000m2,当设置自动灭火系统时间增加1.0倍。金融机构金库可设一个安全出口。
53.符合《建筑设计防火规范》第5.3.4条规定的设置在高层建筑中的商店营业厅、展览厅内,可附设餐饮用房(但不得设置带明火的厨房)。
四、安全疏散
(一)安全出口、疏散宽度与疏散距离
54.招待所(旅馆)、公共娱乐等场所不宜设置在集贸市场内。当必须设置时,招待所(旅馆)、公共娱乐场所应与集贸市场采取防火分隔措施,且招待所(旅馆)、公共娱乐等场所和集贸市场的疏散楼梯在首层均应能直通室外。
55.餐饮场所的营业面积是指餐厅面积,不包括厨房面积;餐厅应明确餐厨布置,当餐厅未设置固定座位时,其疏散人数应按就餐面积(不含厨房、前厅、点菜、吧台区域)1.3m2/人或以餐厅面积(含厨房、前厅、点菜、吧台区域)按商店营业厅的人员密度计算确定;当餐厅设置固定座位或有独立隔间(用固定构件分隔)的包厢时,其疏散人数可按实际座位数的1.1倍计算。
有固定座位的场所,其疏散人数可按实际座位数的1.1倍计算,该场所为电影厅时,其疏散人数应为影厅内座位数、工作人员数和候场人数之和,每层候场人数应按该层各厅平均座位数且不小于该层各厅总座位数的20%计算。
办公场所的疏散人数可按建筑面积9.3m2/人计算。
歌舞娱乐放映游艺场所计算最大容纳人数时,应按厅室建筑面积计算,连接厅室的公共走道面积不计入在内。其中桑拿浴室的洗浴部分的疏散人数可按照更衣柜数量的1.1倍计算。
健身房、游泳池、溜冰场的疏散人数可按照更衣(鞋)柜数量的1.1倍计算。
56.当人员需要通过相邻防火分区疏散时,相邻两个防火分区之间要严格采用防火墙(防火门)分隔,不能采用防火卷帘、防火分隔水幕(设于汽车库车道处的防火卷帘除外)等措施替代。
57.地下商业可利用通往避难走道的门作为任一防火分区的安全出口使用,但应满足以下要求:
(1)地下商业每层疏散总宽度应符合规范要求,通向下沉式广场等室外开敞空间的门以及疏散楼梯的宽度计入疏散总宽度,通向避难走道门的宽度不应计入疏散总宽度。
(2)任一防火分区利用下沉式广场等室外开敞空间的门或疏散楼梯作为安全出口的数量不少于2个但疏散宽度不符合要求时,可利用避难走道和相邻防火分区进行疏散,通往下沉式广场等室外开敞空间的门和疏散楼梯的疏散宽度之和不应小于该防火分区疏散总宽度的50%。
(3)任一防火分区仅有1个安全出口通往下沉式广场等室外开敞空间或疏散楼梯时,可利用避难走道作为第二安全出口,通往下沉式广场等室外开敞空间的门或疏散楼梯的疏散宽度不应小于该防火分区疏散总宽度的70%。
(4)避难走道内任一点至室外、疏散楼梯或下沉式广场等开敞区域的距离不应大于60m。
(5)避难走道不能用于人员疏散外的其他用途;其顶板应为耐火极限不低于1.50h的不燃烧体,顶板下不得穿越通风(空调)风管、排烟管道及无关的电缆桥架等管道和线路。
(6)其余设计应按照《建筑设计防火规范》、《人民防空工程设计防火规范》第5.2.5条执行。
58.下沉式广场等室外开敞空间(以下简称“下沉广场”)的消防设计,除应符合《建筑设计防火规范》的相关规定外,尚应满足下列要求:
(1)地下室朝向“下沉广场”的外墙与“下沉广场”之间的回廊进深不应超过6m,回廊区域仅作为人员通行使用,可不划分防火分区面积。
(2)“下沉广场”用于疏散的净面积不应小于169m2,且该敞开空间的短边不应小于13m(不含回廊)。
(3)当“下沉广场”用于地下或半地下商业20000m2之间的分隔时,分隔后不同区域通向“下沉广场”的开口最近边缘之间的水平距离不应小于13m,同一区域内不同防火分区通向“下沉广场”的门窗之间的距离应满足《建筑设计防火规范》第6.1.3、第6.1.4条的有关规定。
59.除甲、乙类厂房及本《技术指南》第6条规定的厂房外,当厂房内设置自动喷水灭火系统时,厂房内任一点到最近安全出口的距离可增加25%。
60.一、二级耐火等级建筑的疏散内走道两侧的墙应为耐火极限不低于1h的墙,除规范另有规定外,墙上的门可为普通门。当墙上设置普通窗(洞)时(窗台离地1.5m以上的高侧窗(洞)除外)或疏散走道两侧墙的耐火极限低于1.00h时,从房间内任一点至安全出口的直线距离不应大于30m,且行走距离不应大于45m。当上述场所设置自动喷水灭火系统时,其直线距离可增加25%,行走距离不应增加。
61.当厅室面积小于400m2的展览厅、多功能厅、餐厅、营业厅、多厅电影院的观众厅等疏散门不能直通室外地面或疏散楼梯间时,除可按照《建筑设计防火规范》第5.5.17条第4款规定执行外(其中“长度不大于10m的疏散走道”是指疏散距离不大于10m);也可按《建筑设计防火规范》表5.5.17直通疏散走道的房间疏散门至最近安全出口的疏散距离要求执行,但厅室内任一点至疏散门的距离应按照第5.5.17条第3款规定执行(当上述场所设置自动喷水灭火系统时,厅室内任一点至疏散门的直线距离不可增加25%)。
62.网吧、游艺厅、酒吧、歌舞厅当疏散门均直通室外地面或疏散楼梯间时,场所最大疏散距离可按照《建筑设计防火规范》表5.5.17规定的歌舞娱乐放映场所位于两个安全出口之间的疏散门至最近安全出口的疏散距离要求执行。
63.《建筑设计防火规范》第3.7.2条、第5.5.8第2款规定可设置1个安全出口或1部疏散楼梯的条件中,当建筑首层与其余设置1个安全出口或1部疏散楼梯的条件中,当建筑首层与其余各层建筑、疏散楼梯完全分隔时且首层疏散满足规范要求时,首层建筑面积可不限。
64.符合下列条件之一的房间可设置1个疏散门:
(1)建筑面积不大于200m2的设备间;
(2)符合《建筑设计防火规范》第5.5.15条要求的位于建筑底部(地上)直接对外或二层直接开门至室外连廊(此连廊通过疏散楼梯通至室外地面)的商铺。
65.三个及以上防火分区不得共用同一个疏散楼梯。
66.多功能组合建筑中商场、营业厅和歌舞娱乐放映游艺场所不应与办公用房(自身配套办公用房除外)共用疏散楼梯;酒店宾馆(含除歌舞娱乐放映游艺场所外的配套用房)、培训机构等用房与办公用房及其配套餐饮用房之间可以共用疏散楼梯。
办公用房内可设置少量应急值班宿舍。
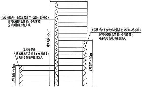
67.多单元组合的住宅建筑各单元的高度不同且较低一单元屋顶无天窗或洞口(不包括屋面透气管、通风口)、屋顶耐火极限不小于1.00h时,可按各独立单元的高度来确定其楼梯间形式、消防电梯的设置,高度大于27m的各单元(已设置两个安全出口者除外)疏散楼梯间应通至屋面,且应在相邻的高度大于27m的较低单元屋面连通。(附图67)

附图67 单元间疏散楼梯连通
68.汽车坡道可不考虑防火分区和疏散距离。汽车停车位的设置不得影响消防设备用房、室内消火栓箱、消防管道井的正常使用。地下车库内最远疏散直线距离的计算不必考虑车辆对路线的阻挡,但应考虑实体墙、机械式停车装置等障碍物对路线的阻挡。
69.《建筑设计防火规范》第3.8.2条规定的仓库的多个防火分区可以通过疏散走道通至安全出口,疏散走道两侧应采用耐火极限不低于2.00h的隔墙。
70.为商场服务的附属库房,应采用耐火极限不低于2.00h的不燃烧体隔墙分隔,如隔墙上需要开设相互连通的门时,应采用乙级防火门。该附属库房不得储存甲乙类物品。
同一防火分区总面积超过500m2的地上和超过200m2地下附属库房应设置一个独立的安全出口,在商场内第二安全出口可利用商业营业厅疏散;同一防火分区总面积不超过500m2的地上和200m2地下附属库房可不设置独立的安全出口,可利用商业营业厅疏散。上述商业营业厅所在防火分区和利用该商业营业厅疏散附属库房的建筑面积之和不应超过商业营业厅的防火分区最大允许建筑面积。
同一防火分区对于采用防火分隔开的仓储、设备房、工具间、卫生间、办公等可不计入营业厅面积,但应根据实际情况进行核定人数和宽度。
电商网店内附设临时仓储功能的,仓储部分与电子商务部分应采取耐火极限不低于2h的不燃烧体隔墙、乙级防火门进行防火分隔。
71.高层建筑(裙房除外)直通室外的安全出口上方应设置挑出宽度不小于1.0m的防护挑檐。
72.红外线感应自动门、旋转门设于安全出口时,该门附近应另设便于人员疏散的平开门。
73.地下自行车库直通室外的自用坡道与自行车库可不进行防火分隔。大开间的自行车库室内最远点到疏散出口的直线距离不应大于30m。
74.“丁”字型内走道上的房间门的安全疏散距离计算方法如下:
当a≤b≤c时,需满足下列要求之一:(附图74)
(1)2a+b≤X,X为《建筑设计防火规范》表5.5.17位于两个安全出口之间的疏散门至最近安全出口的直线距离:
(2)a+b≤Y,Y为《建筑设计防火规范》表5.5.17位于位于袋形走道两侧或尽端的疏散门至最近安全出口的直线距离。
当a>b时,需满足a+b≤Y,Y为《建筑设计防火规范》表5.5.17位于位于袋形走道两侧或尽端的疏散门至最近安全出口的直线距离。

附图74 丁字型走道疏散距离
75.单个面积不大于200m2且同一防火分区内总面积不大于500m2的10KV及以下变配电房可附设在汽车库防火分区内。
76.地下锅炉房、消防水泵房不能直通室外地面或疏散楼梯间时,应采用长度不大于15m的疏散走道(走道两侧应与用房之间采取防火分隔措施)通至最近的安全出口。
(二)疏散楼梯
77.用于敞开楼梯间(从梯段踏步前缘不超过梯段宽度的位置起算到室外的距离不大于15m)疏散的门厅以及不用于其他楼梯间疏散的门厅与建筑其他部分之间可不采取防火分隔措施。
当层数超过4层或可直通室外的门离疏散楼梯间距离大于15m且不超过30m时,可采用扩大封闭楼梯间、扩大前室、无功能的门厅(与其他功能用房之间应采取乙级防火门、防火卷帘等防火分隔措施)通至室外;超过30m(从梯段踏步前缘不超过梯段宽度的位置起算)时,应设置避难走道通至室外。(附图77)

附图77 设置避难走道通至室外
住宅建筑或办公建筑的一个剪刀楼梯间的两个梯段或两部疏散楼梯在首层可利用同一无功能的门厅(与其他功能用房之间应采取乙级防火门、防火卷帘等防火分隔措施)通至室外。
78.根据《建筑设计防火规范》第5.5.13条第4款规定,5层及5层以下的其他建筑(宿舍建筑除外)可为敞开楼梯间。该敞开楼梯间可以不按上、下层相连通的开口考虑(敞开楼梯间应为三面围合的楼梯,仅进出的短边敞开)。
79.《建筑设计防火规范》第5.5.20条关于影院等的疏散宽度只适用于单独建造的相应场所。
80.根据《建筑设计防火规范》关于住宅剪刀楼梯间设置的规定,可以按以下几类图例设计住宅建筑的剪刀楼梯间。

其中三合一前室短边不应小于2.4m是指电梯相对应的部分。(附图:可参照的类似做法,附图80.3在楼梯间北侧应设置室内消火栓;附图80.6户门数不应大于3樘)


住宅建筑的配套地下车库、储藏室也可与上部建筑一致设置三合一前室的剪刀楼梯间。
81.多层公共建筑(不含商场、展厅)的疏散楼梯,当分散设置确有困难且从任一疏散门至最近疏散楼梯间入口的距离不大于10m时,可采用剪刀楼梯间作为两个安全出口使用,但应符合下列规定:
(1)楼梯间应为防烟楼梯间;
(2)梯段之间应设置耐火极限不低于1.00h的防火隔墙;
(3)防烟楼梯间的前室应分别设置。
82.地下车库也可设置剪刀楼梯间,但一个防火分区内不得仅设一部剪刀楼梯间作为两个人员安全出口使用。
商场、展厅可采用剪刀楼梯间作为一个安全出口使用,但每部楼梯的疏散宽度不应大于该防火分区所需疏散总宽度的50%。用于解决疏散宽度采用的剪刀楼梯间,两个梯段之间可不设置防火隔墙。
83.地下室非人员密集场所所在防火分区不可利用通向相邻人员密集场所所在防火分区的门作为第二安全出口。
84.住宅的地下汽车库、储藏室、自行车库,与上部建筑共用同一楼梯间的,其楼梯最小净宽可与上部住宅楼梯净宽一致。
住宅底层楼梯不通过门厅直通室外时,其直通室外的楼梯门最小有效净宽可按0.90m控制。
高层建筑内,仅供地下室疏散楼梯使用的首层疏散外门可不按高层公共建筑首层疏散外门宽度要求设置。
85.住宅户内开向非封闭阳台(可兼前室)的门窗可采用普通门窗,其门洞最小尺寸应满足《住宅设计规范》GB 50096的要求。
86.防烟楼梯间及封闭楼梯间内不得设置管道井、电缆井,当符合下列条件时,建筑高度33m及以下住宅建筑的楼梯间内以及住宅建筑的防烟楼梯间前室、消防电梯前室、合用前室内可设置管道井和电缆井:竖井每层封堵;检修门采用乙级防火门;开向敞开楼梯间和防烟楼梯间前室的户门为乙级防火门。
当户门为乙级防火门时,住宅的电表箱可设置在防烟楼梯间前室的管道井内或其他楼梯间内,应采用不燃表箱。
87.除敞开楼梯间和作为防烟楼梯间前室的阳台、凹廊外,其它楼梯间及前室的内墙上均不得开设与疏散无关的门、窗及洞口。当户门为乙级防火门时,建筑高度33m及以下住宅建筑的楼梯间(含埋深不超过10m的地下层)内可设置电梯。
88.疏散楼梯净宽为梯段一侧的扶手中心线或墙面到梯段另一侧的扶手中心线或墙面之间最小水平距离。疏散门的净宽应按门扇宽度计算。
89.疏散楼梯间、前室或合用前室、消防控制室、消防水泵房、消防电梯机房等直接开向室外或室外平台的疏散门,可采用普通门。
90.《建筑设计防火规范》第8.5.1条中涉及的凹廊、阳台或前室(合用前室),当符合下列条件之一时,其楼梯间可不设置防烟系统:
(1)凹廊(或阳台)至少一边应完全敞开,且敞开面积满足以下要求:前室采用凹廊(或阳台)时,其敞开面积不应小于3m2;合用前室采用凹廊(或阳台)时,其敞开面积不应小于4.5m2。
(2)前室(合用前室)具有两个朝向的可开启外窗,且前室两个不同朝向的可开启外窗面积均不应小于2.0m2,合用前室的可开启外窗面积均不应小于3.0m2。
(三)消防电梯、普通电梯、避难层间和屋顶直升机停机坪
91.直通建筑内附设汽车库的普通电梯,应在汽车库部分设置电梯候梯厅,并应采用耐火极限不低于2.00h的防火隔墙和乙级防火门、符合《建筑设计防火规范》第6.5.3条规定的防火卷帘与汽车库分隔。
92.消防电梯应能每层停靠。每层停靠确有困难的,对于公共建筑,建筑24m以下部位与24m以上部位采取完全防火分隔措施时,24m以下各层可不停靠(地下室除外)。对于住宅建筑,商业服务网点可不停靠。
93.住宅建筑与其他使用功能的建筑合建时,住宅部分和非住宅部分的消防电梯配置,可根据各自的建筑高度分别按照《建筑设计防火规范》有关住宅建筑和公共建筑的规定执行。
当满足安全疏散距离时,住宅建筑设置的跃层所在楼层可不开设户门,消防电梯可不在跃层停靠。
94.在同一层内设有多个防火分区的建筑物,多个防火分区可以合用消防电梯,但应满足合用时该区域的消防电梯数量不少于2台。
95.《建筑设计防火规范》第7.3.1条第3款规定的“埋深大于10m且总建筑面积大于3000m2的其他地下或半地下建筑(室)”不包括汽车库;当其他功能用房与地下汽车库上下组合建造时,汽车库部分的埋深可不计入。
96.防烟楼梯间的前室、合用前室、消防电梯前室内允许设置普通电梯的门,地下室楼梯间及前室、合用前室、消防电梯前室内允许设置人防防爆活门。
97.直升机停机坪的尺寸为直径不小于21m,直升机救助设施的场地尺寸为长、宽分别不小于15m、12m。
98.多层住宅建筑在建筑外侧加建电梯时,当电梯井道未采用耐火极限不小于2.00h的实体墙时(如采用玻璃幕墙等围护结构),距离原建筑两侧门、窗、洞口最近边缘的水平距离不应小于1.0m。
五、消防给水
(一)消防水源
99.在供水管理部门同意且市政给水管网为环状管网,生产、生活用水量达到最大且仍能满足室内外消防用水量时,消防泵可直接从市政给水管网吸水。
100.符合当地消防车的供水能力,建筑高度不大于100m的建筑当采用可调式减压阀进行分区时,可只在高区设置水泵接合器。
101.《消防给水及消火栓系统技术规范》GB
50974-2014第4.3.1条第2款中住宅建筑高度为54m。
102.当设消防水池储存室外消防用水时,在入户引入给水管后设置的室外消火栓,其水量按《消防给水及消火栓系统技术规范》第6.1.5条的规定计入室外消火栓设计流量,并应符合第7.2.8条的规定。
103.《消防给水及消火栓系统技术规范》的表3.3.2、表3.5.2和第7.3.4条涉及的地下建筑、人防工程、地下工程是指独立建造的地下建筑、人防工程、地下工程;除住宅配套自行车库及储藏室、地下车库、设备用房外的非独立建造的地下建筑、人防工程也应按地下建筑的水量计算,但体积按地下建筑的体积计算。
104.住宅和其他使用功能合建的建筑,计算室外消防用水量时火灾延续时间应根据建筑的总高度和建筑规模按公共建筑的规定执行。
105.消防水箱进水管口最低点高出溢流边缘的空气间隙应按《建筑给水排水设计规范》第3.2.4C条规定执行,不小于150mm。
106.《消防给水及消火栓系统技术规范》第6.1.10条中的“仅采用稳压泵稳压”是指未设置高位消防水箱的临时高压消防给水系统。
107.体积不大于5000m3的甲乙丙类厂房和体积不大于3000m3的甲乙丙类仓库,当建筑内的水消防系统仅有室内消火栓系统时,可只设高位消防水箱和水泵接合器,水箱最低有效水位应高于最不利消火栓不小于7m。水箱高度不能满足要求时,应设稳压泵和气压水罐,稳压泵流量不小于5L/s,扬程应满足最不利点灭火要求;气压水罐调节容积应保证稳压泵启泵次数不大于15次/h,并不小于450L。
108.《消防给水及消火栓系统技术规范》第4.3.9条中消防水池的报警水位可按设计水位要求高于或低于50-100mm。
(二)室内外消火栓系统
109.建筑高度大于54m的高层住宅建筑当分别设置两个消火栓箱确有困难时,可在同一个消火栓箱内设置两个栓口,但应分别由两根消火栓竖管接出。
110.建筑高度大于54m的高层住宅建筑的户内应配置轻便消防水龙。
111.室内消火栓栓口动压一般应按不大于0.50MPa控制压力;有特殊需求的工程可适当放宽,当大于0.70MPa时必须设置减压装置。
112.地下室、单层建筑的室内消火栓系统当采用水平环网布置时,系统阀门设置应保证人员密集场所的每个防火分区在检修时至少有1支消防水枪的1股充实水柱到达室内任何部位。
113.管径DN65的架空管道可以采用沟槽连接件连接、法兰连接或螺纹连接。
114.建筑耐火等级为一、二级的商店、图书馆、档案馆与其他功能合建的单、多层公共建筑,当不同使用功能场所之间设置符合《建筑设计防火规范》第1.0.4条规定的防火分隔时,室内消火栓设计流量可分别按不同类别的高度、体积和座位数对照《消防给水及消火栓系统技术规范》GB 50974-2014表3.5.2,选取最大值作为室内消火栓设计流量。其他多种功能合建的单、多层公共建筑室内消火栓设计流量,按总高度、总体积和总座位数,对照《消防给水及消火栓系统技术规范》表3.5.2,选取最大值作为室内消火栓设计流量。
(三)消防水泵
115.消防水池池底标高不应低于消防水泵房的地坪标高,并应符合在消防水池最低有效水位且流量为1.5倍设计流量时水泵入口处的负压值不大于0.02MPa。
116.消防水泵出水干管上的压力开关和高位消防水箱出水管上的流量开关应同时设置且都作为启泵条件。
(四)自动啧水灭火系统
117.多层老年人建筑和大、中型幼儿园的自动喷水灭火系统按轻危险级确定。
118.住宅建筑(群)每个防火分区小于500m2的地下室且分隔成供各住户独立使用的储藏间或自行车库(住宅套内的地下室除外),当该建筑(群)设有自动喷水灭火系统时应设自动喷水灭火系统,系统按中危险级Ⅰ级设计。当该建筑(群)未设自动喷水灭火系统时可不设自动喷水灭火系统。
119.机械式汽车库自动喷水灭火系统应按中危险级Ⅱ级设计,设计流量可按《全国民用建筑工程设计技术措施》(给水排水2009版)的相关规定确定。
120.局部设置具有送回风管(道)的集中空气调节系统的多层教学楼、办公楼,当设置空调系统部分的建筑面积之和大于3000m2但空调风管不穿越防火分区、不穿越楼板,或者设置空调系统的部分建筑面积之和不超过3000m2时,可不设自动喷水灭火系统。
121.湿式报警阀不得设于消防控制室内。在确有困难时,湿式报警阀可设于管道井内,但应便于操作并应设置排水设施。水力警铃的设置应符合规范要求。
122.消防控制室可不设自动喷水灭火系统,但应按《建筑灭火器配置设计规范》GB 50140的要求配置灭火器。
123.室内顶板设置为水平的轻危险级、中危险Ⅰ级住宅建筑、旅馆客房、医院病房、宿舍楼房间可采用边墙型喷头。
(五)其他灭火系统
124.净高超过自动喷水灭火系统保护可达高度的中庭(无可燃物的中庭除外)需要设置自动灭火系统时,宜采用自动跟踪定位射流灭火系统等。
125.地下汽车库的建筑灭火器配置可按A类火灾中危险级设计。地下汽车库直通室外的汽车坡道可不设置自动喷水灭火系统,坡道出入口可不设置防火卷帘。
126.下列变配电所应设置自动灭火系统,并宜采用气体灭火系统:
(1)设置在高层民用建筑内的变配电所;
(2)设置在高层民用建筑群地下室为高层民用建筑服务且有消防负荷的其它变配电所;
(3)设置在建筑面积大于10万m2的商业综合体内的变配电所;
(4)设置在地下室为建筑面积大于10万m2的商业综合体服务且有消防负荷的变配电所。
127.商业建筑灭火器配置的危险等级可按《建筑灭火器配置设计规范》GB 50140附录D确定。
六、消防电气
(一)消防电源
128.不同级别消防负荷的供电电源应符合现行国家标准《建筑设计防火规范》的规定。
129.在按一、二级负荷供电的广播电视中心、医院、电厂等建筑内的特殊场所,若采取自动切断非消防电源方式会造成较大损失的,在有人值班且非消防电源与消防电源分别独立设置的情况下,可采用手动切断非消防电源方式。
(二)配电线路
130.建筑物内(变配电室除外)高压供电线路的敷设应满足消防配电线路的防火敷设要求。
131.用于防火分隔且按一、二级消防负荷供电的多个防火卷帘,当涉及2个以上(不含2个)防火分区时,应采用放射式供电。(附图)

(三)消防应急照明、疏散指示系统
132.按一、二级消防负荷供电的住宅建筑底部设置的商业服务网点,如采用自带电源型消防应急灯具,可不设置专用的应急照明配电箱,但应设置专用的配电线路,消防疏散指示标志灯应采用持续点亮型灯具。
133.除住宅建筑外的其他民用建筑,消防应急照明和疏散指示系统应符合以下规定:
(1)消防应急照明和疏散指示系统的选型应满足《消防应急照明和疏散指示系统》GB 17945的系统形式分类要求。
(2)采用集中电源系统时,应按防火分区设置应急照明分配电装置及双电源自动切换装置;当每层仅有一个防火分区时,应急照明分配电装置可每三层设置一台;面积较小的防火分区,应急照明和疏散指示系统配电只有一个或二个回路时,可以引自相邻防火分区的分配电装置;自其他防火分区引来的末端配电线路必须采用穿金属管暗敷在不燃性结构体内且保护厚度不应小于30mm;应急照明集中电源、应急照明分配电装置应设置在消防设备机房内或配电间内。
(3)采用自带电源系统时,一、二级消防负荷供电的民用建筑应按防火分区设置应急照明配电箱;当每层仅有一个防火分区时,应急照明配电箱可每三层设置一台;面积较小的防火分区,应急照明和疏散指示系统配电只有一个或二个回路时,可以引自相邻防火分区的应急照明配电箱。
(4)采用自带电源系统供电电源为非安全电压时,在设有火灾自动报警系统的建筑或场所,应急照明配电箱应接受联动控制信号,切断供电电源,使连接的灯具转入自带电源应急点亮状态,并发出反馈信号。
(5)《建筑设计防火规范》第10.3.5条规定设置的灯光疏散指示标志应采用持续型消防应急灯具。
134.保持视觉连续的疏散指示标志的设置应符合下列条件:
(1)需增设能保持视觉连续的疏散指示标志的建筑或场所,宜设置灯光型疏散指示标志,当平时地面照度较大时,可设置蓄光型疏散指示标志。
(2)疏散指示标志宜连续布置,当间断布置时,除规范另有规定外,灯光疏散指示标志的间距不应大于5m,蓄光疏散指示标志的间距不应大于1.5m。
(3)当疏散指示标志遇到的门不是疏散出口或安全出口时,宜在该处的地面连续指示。
(四)火灾自动报警系统
135.除规范规定的设置场所外,二类高层建筑中旅馆的客房及其公共活动用房应设置火灾自动报警系统。
建筑高度大于54m的住宅建筑,其套内应设置火灾探测器。
住宅小区中配套的居家养老服务用房应设置火灾自动报警系统。
136.设置集中报警系统或控制中心报警系统的建筑应在楼梯间内设置火灾探测器。
137.未设置火灾自动报警系统的建筑当设有防火卷帘时,应在防火卷帘两侧设置火灾探测器,联锁控制防火卷帘动作。
138.除《建筑设计防火规范》专门规定的具有信号反馈功能的防火门外,其他防火门可不强制设置防火门监控系统。
139.采用集中报警系统或控制中心报警系统的建筑应设置消防电源监控系统。消防电源监控器应设在消防控制室内,最末一级消防双电源切换箱内供电电源、备用电源、双电源开关出线侧、为消防设备供电的所有直流电源装置出线侧应设置消防电源监控监测点。
140.设置火灾自动报警系统的住宅建筑,每个单元应至少设置一个区域显示器,区域显示器宜设置在建筑首层;火灾声警报器应每层设置。
141.区域型火灾自动报警系统可以采用火灾报警控制器控制输出点直接控制相关场所或部位的消防机械排烟、防烟风机或自动排烟窗,并在火灾报警控制器上的手动直接控制按键上(或附近)设置明显标识。
七、防烟、排烟及供暖、通风和空气调节
142.《建筑设计防火规范》第8.5.2条第1款中“人员或可燃物较多的丙类生产场所”,当该场所建筑面积大于300m2时应设置排烟设施。
143.民用建筑内需设置排烟设施的场所或部位,应按《建筑设计防火规范》第8.5.3及第8.5.4条的相关要求综合考虑确定。
144.《建筑设计防火规范》第8.5.4条中规定的“地上建筑内的无窗房间”,是指地上建筑的内区房间或虽靠外墙但无窗(或设固定窗)的房间。
145.当住宅建筑的地下室使用功能为非营业性场所,其地下室层数≤2层且地下层室内地面与室外出入口地坪高差≤10m时,如该建筑楼梯间的地上部分采用自然通风防烟,则其地下部分可不设置防烟设施;如楼梯间地上部分的前室或合用前室采用自然通风防烟,则其地下部分的前室或合用前室可不设置防烟设施。
146.建筑高度超过50m的一类高层公共建筑中,仅服务于50m以下功能空间的符合自然通风防烟条件的防烟楼梯间及前室(合用前室)可采用自然通风防烟方式。(附图146)

附图146
147.地下室(半地下室)防烟楼梯间与相应的地上楼梯间均需设置加压送风系统时,应分别独立设置。受建筑条件限制时,地下汽车库、非机动车库或设备用房等的疏散楼梯间可与相应地上部分的楼梯间共用机械加压送风系统,但应分别计算地上、地下的加压送风量,共用加压送风的系统设计应采取有效措施满足地上、地下的送风量要求。
148.疏散用剪刀楼梯间,当设置加压送风系统时,两个梯段的加压送风系统应分别独立设置。
149.采用自然通风防烟的地上封闭楼梯间、防烟楼梯间,应在最高楼层部位设置面积不小于1.0m2的可开启外窗或开口;当建筑高度大于10m时,尚应在楼梯间的外墙上每5层内设置总面积不小于2.0m2可开启外窗或开口,且宜每隔2~3层布置。
150.仅通至地下一层的地下室(半地下室)封闭楼梯间,当其在首层不与相应的地上楼梯间共用安全出口时,该封闭楼梯间可不设置机械加压送风系统,但首层应设置有效面积不小于1.2m2的可开启外窗或直通室外(无需通过走道)的疏散门。
151.对于建筑首层由走道或门厅等形成的扩大封闭楼梯间、防烟楼梯间扩大前室,当门厅建筑面积大于100m2时,应设置可开启外窗等自然通风防烟设施,开窗(开口)有效面积不应小于地面面积的2%,且不应小于2m2;走道宜设置可开启外窗等自然通风防烟设施,当走道长度小于30m时,开向室外的门可作为自然通风防烟设施用。
152.采用自然通风方式防烟的避难层,应设有不同朝向的可开启外窗,其有效面积不应小于该避难层地面面积的2%,且每个朝向的有效面积不应小于2.0m2;设置机械加压送风系统的避难层(间),尚应在外墙设置可开启外窗,其有效面积不应小于该避难层(间)地面面积的1%。
采用自然通风方式防烟的避难间,当建筑面积小于等于100m2时,可设置一个朝向的可开启外窗,其有效面积不应小于该避难间地面面积的3%,且不应小于2.0m2。
153.机械加压送风系统按门洞风速法计算送风量时,开启门的数量应按消防技术规范的有关要求确定,门洞断面风速宜按以下确定:当防烟楼梯间、前室(合用前室)均机械加压送风时,门洞断面风速不应小于0.7m/s;当防烟楼梯间机械加压送风、前室不送风时,门洞断面风速不应小于1.0m/s;当防烟楼梯间不设机械加压送风、前室(合用前室)送风时,门洞断面风速不应小于1.2m/s。
不能自然通风或自然通风不能满足要求的封闭楼梯间采用机械加压送风方式防烟时,楼梯间与走道之间的压差取40-50Pa;门洞断面风速取1.0-1.2m/s。
154.楼梯间和前室(合用前室)的机械加压送风系统,其加压送风量与余压值两者均应满足规范要求。在检测及验收时,均应测试余压值和门洞风速等指标。
155.建筑内的加压送风机应独立设置在专用机房内或室外,专用机房应采用耐火极限不低于2.00h的隔墙和1.50h的楼板及甲级防火门与其它部位隔开风机两侧应有600mm以上的安装维修空间。设置在室外的加压送风机应采取防雨防晒等防护措施。当加压送风风机独立布置确有困难,需与其它通风机、空调机合用机房时,除应符合上述专用机房的耐火要求外,还应符合下列条件:
(1)机房内应设有自动喷水灭火系统;
(2)机房内不得设有用于排烟和事故通风的风机与管道。
(3)通风、空调管道穿越机房防火隔墙或楼板处应设置防烟防火阀,该防火阀应具有与机房相邻防烟分区的火灾探测器联动关闭的功能。
当风机设置于专用机房内时,风机控制柜应放置在专用机房内,当风机设置于室外时,风机控制柜应放置在附近公共部位,并应采取防护措施。
156.加压送风机进风口宜设在机械加压送风系统的下部,进风口应采取防止烟气侵袭的措施。
对于超高层建筑,其加压送风系统应按规范要求结合避难层分段设置,加压送风机进风口、排烟风机排烟口应布置在建筑不同朝向,进风口宜低于相应分段的排烟口。
157.当封闭楼梯间、防烟楼梯间及其前室(合用前室)采用可开启外窗自然通风时,可开启外窗的室外侧不应设置影响楼梯间或前室(合用前室)自然通风的设备及平台。
158.设置在四层及以上楼层、地下或半地下室的歌舞娱乐放映游艺场所,当设置机械排烟系统时排烟设计应满足以下要求:
(1)当房间面积≥50m2时应设置排烟口,房间面积<50m2时宜设置排烟口;内走道应设置排烟口,且其排烟宜设置成独立的排烟系统:
(2)多个设有排烟口的相邻房间,可根据需要将其合并成一个防烟分区计算排烟面积;未设有排烟口的房间,其房间面积应计入内走道防烟分区的计算排烟面积;系统计算排烟量应按最大防烟分区面积不小于60m3/m2·h计算,且不得小于13000m3/h。
(3)内走道和设有排烟口的房间应设置补风口,补风口的布置应有利于排烟和人员疏散。当设置机械补风时,系统宜独立设置。
159.设置在一、二、三层的歌舞娱乐放映游艺场所,其排烟设计应满足以下要求:
(1)当房间为无窗(或设固定窗)房间且单个房间面积≥50m2(或多个无窗房间总面积≥200m2)时应设置排烟设施;当房间为有窗房间且单个房间面积≥100m2时应设置排烟设施:
(2)当该场所采用机械排烟系统时,其排烟系统的防烟分区、排烟量、补风等设计应参照上述设置于四层及以上楼层、地下或半地下室的歌舞娱乐放映游艺场所的相应要求进行。
160.单、多层建筑或高层建筑裙房中净高大于12m的高大空间(含中庭等)的排烟,可采用自然排烟方式。
161.超高层建筑的排烟系统,应按规范要求结合避难层分段设置。公共建筑高度超过100m的部分需设置排烟的部位或场所宜采取机械排烟方式。排烟风机宜设置在排烟系统的顶部。
162.当地下室、半地下室一个防火分区内的单个非机动车库建筑面积大于500m2或被分隔成多个隔间且其建筑总面积大于200m2时,非机动车库应设置排烟设施。
当采用机械排烟时,防烟分区计算排烟量应按不小于60m3/m2·h计算;当采用自然排烟时,自然排烟口的总面积不应小于室内地面面积的2%。
163.水泵房、空调通风机房、变配电室、柴油发电机房、燃油(燃气)锅炉(机组)的机房、制冷机房等无人员经常停留的机电用房(有人员值班的且面积大于等于50m2的控制室除外),可不设置排烟设施。
164.建筑内的地下电梯厅、地下门厅(不含作为前室或合用前室使用的厅室)等属于经常有人停留的场所,当其建筑面积大于50m2时应设置排烟设施。
165.公共建筑、工业建筑中的内走道,当宽度不大于2.5m时,其防烟分区的长边长度不宜大于60m;当走道采用自然排烟方式排烟时,其最不利点至自然排烟口的距离不应超过30m且自然排烟口总有效面积不小于该走道地面面积的2%。
166.设置气体灭火系统的场所(防护区),不应设置火灾时的排烟设施,应按规定设置灭火后的通风设施,通风设施排风量按换气次数不小于8次/小时确定,排风口应直接通至室外。
167.冷库的冷间(含冷藏间、冻结间等)可按《冷库设计规范》GB 50072不设置消防排烟设施。
168.建筑内的排烟风机应独立设置在专用机房内或室外,专用机房应采用耐火极限不低于2.00h的隔墙和1.50h的楼板及甲级防火门与其它部位隔开,风机两侧应有600mm以上的安装维修空间。设置在室外的排烟风机应采取防雨防晒等防护措施。
当排烟风机独立布置确有困难,需与其它通风机、空调机合用机房时,除应符合上述专用机房的耐火要求外,还应符合下列条件:
(1)机房内应设有自动喷水灭火系统;
(2)机房内不得设有用于机械加压送风的风机与管道;
(3)排烟风机与排烟管道上不宜设有软接管。当排烟风机及系统中设置有软接头时,该软接头应能在280℃的环境条件下连续工作不少于30min。
当风机设置于专用机房内时,风机控制柜应放置在专用机房内,当风机设置于室外时,风机控制柜应放置在附近公共部位,并应采取防护措施。
169.当排烟口设在吊顶内且通过吊顶上部空间进行排烟时,应符合下列规定:
(1)吊顶应采用不燃材料,且吊顶内不应有可燃物;
(2)非封闭式吊顶的吊顶开孔率不应小于吊顶净面积的25%,且排烟口应均匀布置。
170.排烟窗的有效面积按下列方式确定:
(1)对于悬窗、平开窗、顶开窗等,当开窗角大于等于70°时,其有效排烟面积可按其窗面积计算;当开窗角小于70°时,其有效排烟面积应按窗的开启投影面积计算:
(2)侧(推)拉窗的有效排烟面积按可开启的最大窗口面积计算;
(3)百叶窗的有效排烟面积按窗的有效开口面积计算;
(4)对于平推窗,当设置在外墙时,其有效面积应按窗1/4周长与平推距离乘积计算,且不应大于窗面积;当设置在顶部时,其有效面积应按窗1/2周长与平推距离乘积计算,且不应大于窗面积。
(5)其它可开启外窗型式的有效面积计算应按国家有关规范、标准等的规定进行。
171.自然排烟窗(口)应能手动开启,设置在高位不便于直接开启的自然排烟窗(口),应设置距地面高度1.3~1.5m的手动开启装置。净空高度大于9m的中庭以及建筑面积大于2000m2的营业厅、展览厅、多功能厅、体育比赛厅(含观众厅)等厅室,其高位自然排烟窗还应设置分区、分组集中手动开启装置和自动开启设施。
当自动排烟窗采用与火灾自动报警系统联动启动时,发生火警所在防烟分区内的自动排烟窗应在60s内或小于烟气充满储烟仓时间内全部开启完毕。
选用自动排烟窗时,其整窗完全开启时间、开启角度、启动方式等性能应满足规定要求,并宜考虑防失效保护等技术措施。
172.一个排烟系统担负多个防烟分区的排烟支管上应分别设置排烟防火阀(280℃);当同一防火分区内不同防烟分区均独立设置排烟系统时,一个防烟分区的排烟管穿越另一防烟分区的穿越处可不设置排烟防火阀(280℃)。
173.原《建筑设计防火规范》GB 50016-2006及《高层民用建筑设计防火规范》GB 50045-95(2005年版)等防火规范中有关排烟口风速不宜大于10m/s的要求,是指满足该防烟分区排烟量(设计状态)时的风口风速要求。
174.建筑面积大于等于50m2且小于500m2的地上无窗房间,当其房间门为非防火门时,其排烟系统可通过与其相连的走道进行补风,房间内可不另设补风口。
175.除加压送风管道外的通风(空调)风管、排烟管道不应穿越建筑内楼梯间、前室(含建筑首层由走道和门厅等形成的扩大封闭楼梯间、防烟楼梯间扩大前室)、避难区及避难走道等防烟部位,当受条件限制必须穿越时,通风(空调)风管、排烟管道应采用耐火极限不低于2.00h的隔墙和1.50h的楼板进行防火分隔。
176.地下燃气(燃油)锅炉房、燃气型直燃式溴化锂冷(热)水机组机房等的事故排风机应设置在地上建筑内或室外,当确有困难时,排风机可布置于锅炉房(或机组机房)自然通风良好的泄爆井内,或设置于自然通风良好的地下专用机房内,其自然进、排风开口有效面积均不应小于专用机房地面面积的5%,进风口应布置于机房底部,排风口应布置在机房顶部,排风口宜通至室外。
八、动力专业
177.直燃式溴化锂冷(热)水机组和总容量大于0.7MW的常(负)压燃油(燃气)热水机组的机房,其消防设计应按《建筑设计防火规范》中的有关锅炉房的规定执行,并应按规定采取有效防爆泄压措施。
178.锅炉、柴油发电机的排烟管(烟囱)不应穿越防火分区及建筑内楼梯间、前室、避难区和避难走道等防烟部位,当受条件限制必须穿越时,穿越楼梯间、前室、避难区和避难走道等防烟部位的排烟管应采用耐火极限不低于2.00h的隔墙和1.50h的楼板进行防火分隔;穿越防火分区的排烟管应采用耐火极限不低于1.00h的防火分隔措施进行分隔。
179.附设于建筑内的燃油(燃气)锅炉房,其设置位置应符合《锅炉房设计规范》GB 50041和《建筑设计防火规范》的有关规定,且单台蒸汽锅炉的额定蒸发量不应超过10t/h,单台热水锅炉的额定出力(热功率)不应大于7MW。
九、特殊场所
180.电影厅、法院审判厅等为固定座位时,其厅室面积及相关消防设计应参照观众厅要求执行;设置在四层及四层以上的电影厅、法院审判厅等确有困难时,厅室面积可大于400m2,在符合规范要求的同时,还应做到以下几点:
(1)厅室应采用防火墙、甲级防火门与其他部位分隔;
(2)当设置自动喷水灭火系统时,厅室内的喷头应采用快速响应喷头:
(3)厅室应设置独立的机械排烟系统和补风系统;
(4)当厅室建筑面积不大于600m2,该厅室座位数不得超过300座;当厅室建筑面积大于600m2,厅室座位数不得超过厅室面积的1/2且不得超过400座;
(5)厅室内任一点至疏散门的直线距离不应超过15m;
(6)该场所至少应设置一部独立的疏散楼梯或设置直通上人屋面的安全出口。
设置在四层及四层以上的宴会厅、餐厅、员工食堂、无观众席的体育比赛用房(训练用房)等可在观众厅的基础上适当放宽厅室面积要求。
181.任一层或任一防火分区内的建筑总面积小于50m2的儿童活动空间,可不考虑独立疏散和防火分隔。
182.附设在其他建筑物内的儿童活动场所与其他场所或部位的分隔可采用防火卷帘,但卷帘长度应按照儿童活动场所与其他场所或部位之间分隔部位的长度,符合《建筑设计防火规范》第6.5.3条的规定。
183.当儿童活动场所、老年人活动场所设置在其他单、多层民用建筑内时,应设置不少于1个独立的安全出口,其疏散宽度不应少于该场所设计疏散总宽度的70%。
184.“有顶步行街”(含步行街首层地面、二层及以上连廊、回廊区域,以下简称步行街)在符合规范要求的同时,还应做到以下几点:
(1)步行街首层与地下层之间不应设置中庭、自动扶梯等上下连通的开口;首层地面至顶棚下檐的净高不应超过24m。
(2)与步行街贴邻超过300m2的商业用房,与有顶步行街之间应采取防火分隔措施,连通步行街的单个开口部位宽度不应大于9m,应设置与步行街独立的安全出口和疏散楼梯,不能利用步行街进行疏散,疏散距离应按大开间商业考虑;不超过300m2的商业用房任一点至房间疏散门的距离应符合《建筑设计防火规范》第5.5.17条第3款的规定。
(3)当建筑局部突出物或相邻建筑的外墙高于“步行街”顶棚部分采用防火墙和耐火极限不低于1小时的屋面板时,“步行街”顶棚与上述外墙距离不限;当上述外墙高于“步行街”顶棚部分设置门窗洞口时,“步行街”顶棚与上述外墙距离不小于6m,排烟口与上述外墙距离不小于9m。
(4)“步行街”(含两端楼板和屋顶)各层开口应上下对应并均匀布置,楼板开口最狭处宽度不应小于9m(局部自动扶梯可除外);连廊宽度不应大于6m。“步行街”应按商业营业厅要求计算疏散人数。
(5)“步行街”的长度不应超过300m;“步行街”的长度按“步行街”中心线计算;“步行街地面面积”是指“步行街”与两侧商铺外墙的分隔线以内的区域。
(6)地上二层及以上层回廊、连廊部分的人员疏散可直接(或利用前室)通至疏散楼梯;疏散楼梯在首层可利用扩大前室或扩大楼梯间(扩大前室或扩大楼梯间与其他功能用房之间应采用耐火极限不低于2h且不开设门窗洞口的隔墙分隔)通至“步行街”,且疏散楼梯(从梯段踏步前缘不超过梯段宽度的位置起算)至“步行街”的距离不得超过15m。
(7)“步行街”首层地面及各层连廊、回廊可利用“步行街”的自然排烟窗进行排烟,与“步行街”相邻的商业用房应设置独立的排烟设施;各层“步行街”的回廊、连廊应设置自动喷水灭火系统和火灾自动报警系统;“步行街”内应设置室内消火栓。
185.对于总建筑面积10万m2及以上(不包括住宅和写字楼部分的建筑面积)集购物、旅店、展览、餐饮、文娱、交通枢纽等两种或两种以上功能于一体的超大城市综合体,尚应做到以下几点:
(1)餐饮场所食品加工区的明火部位应靠外墙设置,且不得设置在地下室,并应与其他部位进行防火分隔;
(2)商业营业厅每层的附属库房应采用耐火极限不低于3.00h的防火隔墙和甲级防火门与其他部位进行分隔;
(3)当采用自动排烟窗时,应具备在紧急情况下能正常工作的防失效保护功能,保证在紧急情况下能自动打开并处于全开位置。
186.一、二级耐火等级菜市场(该市场内不得设置百货等商铺)的防火分区每层最大允许建筑面积,可按规范规定增加1.0倍,单层敞开式菜市场(四周敞开且满足自然排烟要求)的防火分区最大允许建筑面积不限。一、二级耐火等级菜市场每层每个防火分区应设置不少于2个安全出口,且应符合疏散距离要求,可不考虑疏散宽度。
单层敞开式菜市场的钢结构可不采取防火保护措施;单层菜市场总面积不超过防火分区每层最大允许建筑面积时(含上述允许增加的面积要求),可不设置自动灭火系统和火灾报警系统。
187.排屋、别墅及其他住宅建筑的户内楼梯可采用敞开楼梯,该楼梯地下与地上部分在首层可不作防火分隔。但应满足以下要求:
(1)排屋、别墅直通室外的安全出口应设置在离该楼梯小于等于15m处;
(2)排屋、别墅户内任一点到室外出口的距离不应超过30m,其他住宅户内任一点到安全出口的距离应符合《建筑设计防火规范》第5.5.29条第3款的规定,其中楼梯疏散距离按其水平投影1.5倍计算;
(3)户内楼梯的宽度可按《住宅设计规范》GB 50096关于套内楼梯的要求执行。
188.体育场馆比赛大厅(含看台和场地)和观众休息厅可按一个防火分区设计,看台人员可通过观众休息厅疏散至安全出口。
但应满足以下要求:
(1)观众休息厅仅可用于人员通行和休息,观众休息厅应采用不燃、难燃材料装修,休息桌椅应为不燃材料,且不得影响人员疏散。
(2)比赛大厅看台任一点至比赛大厅通至观众休息厅的疏散门距离不应超过37.5m;休息厅内任一点至安全出口的最大步行距离不应超过40m。
(3)休息厅与比赛大厅之间应采用耐火极限不低于2.00h的防火隔墙和甲级防火门分隔。
(4)观众休息厅与相邻功能用房(卫生间和淋浴间除外)均应采用耐火极限不低于2.00h的防火隔墙、甲级防火门和防火卷帘分隔。
(5)观众休息厅和比赛大厅应分别设置独立的排烟设施。泳池看台区和戏水池区在计算排烟量或自然排烟口开窗面积时,水区面积可不计入。
(6)座位数大于3000座或建筑面积大于2500m2的体育馆,休息厅应设置自动灭火系统,喷头应采用快速响应喷头。游泳馆的泳池上空可不设置自动灭火系统和火灾自动报警系统。
189.除《体育建筑设计规范》JGJ 31-2003另有规定外,体育场馆的钢柱、钢梁、屋顶承重钢构件及支座均应采取防火保护措施。
190.商业服务网点在符合规范要求的同时,疏散楼梯设置形式可不限,但还应做到以下几点:
(1)商业服务网点的总高度(建筑层高之和)不应大于7.8m(对于坡屋顶建筑,建筑层高应计算至檐口与屋脊的平均高度);
(2)商业服务网点的疏散楼梯宽度不应小于1.2m;
(3)当商业服务网点设置封闭楼梯间时,封闭楼梯间在首层应直通室外,二层的疏散距离可算到楼梯间的门。
191.物业用房、居委会办公、小型诊所、变配电房、小区配套服务等用房符合商业服务网点要求的,可以参照住宅建筑底部的商业服务网点的要求执行。
总高度(建筑层高之和)不超过7.8m且建筑面积不大于300m2的小区配套的居家养老服务用房可以设置在住宅建筑的首层或首层及二层,其消防设计应满足老年人建筑相关设计规范的要求。
192.下列建筑可参照商业服务网点的要求进行设计,设置在非住宅建筑底部的商店参照住宅建筑底部的商业服务网点的要求执行时,其消防设施仍应按整体建筑的要求进行设计。
(1)独立建造的不超过2层的商店建筑,符合商业服务网点要求的,可以参照住宅建筑底部的商业服务网点的要求执行。
(2)设置在非住宅建筑首层及二层的全部商店符合商业服务网点要求,可以参照住宅建筑底部的商业服务网点的要求执行。
(3)设置在非住宅建筑首层及二层的部分商店符合商业服务网点要求且与首层、二层其他功能之间采用不开设门窗洞口的防火墙分隔的商店,可以参照住宅建筑底部的商业服务网点的要求执行。
193.关于汽车4S店:
(1)整体按照公共建筑设计,车辆销售、维修和停放区等各功能区域之间应采取防火分隔措施;
(2)车辆销售区可按照大开间商业设计,车辆维修区和停放区应分别按照《汽车库、修车库、停车场设计防火规范》GB 50067-2014中有关修车库和汽车库的要求设计:
(3)车辆销售区、维修区的安全出口应独立设置。
194.新建的消防控制室宜设置在地上1层或直通下沉式广场等室外开敞空间。消防控制室净面积不应小于10m2,每人使用面积不应小于4m2。